Content

Wheelchair accessible studios with kitchen and bathroom in a larger share house/housing co-operative
Croydon NSW 2132
2 bed
2 bath
2 parking
spaces
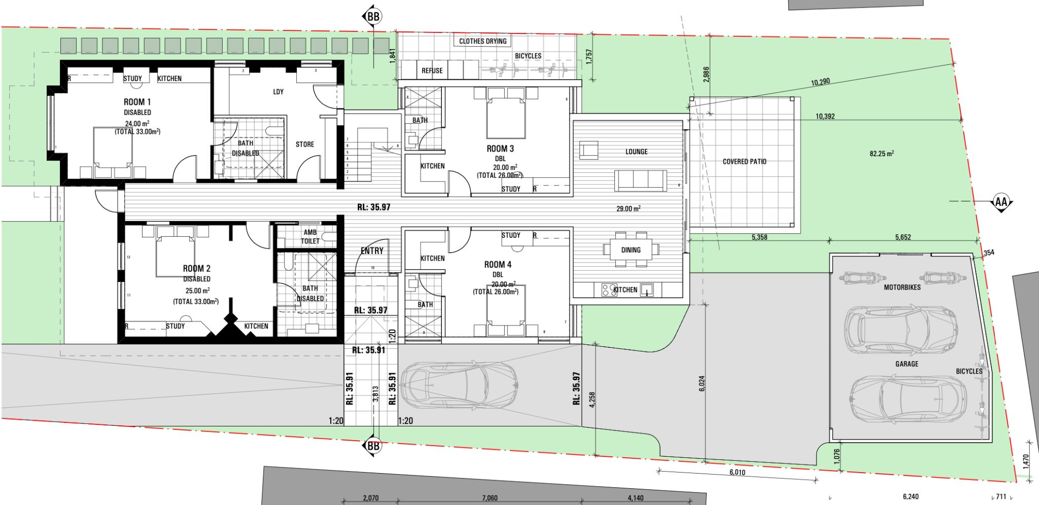
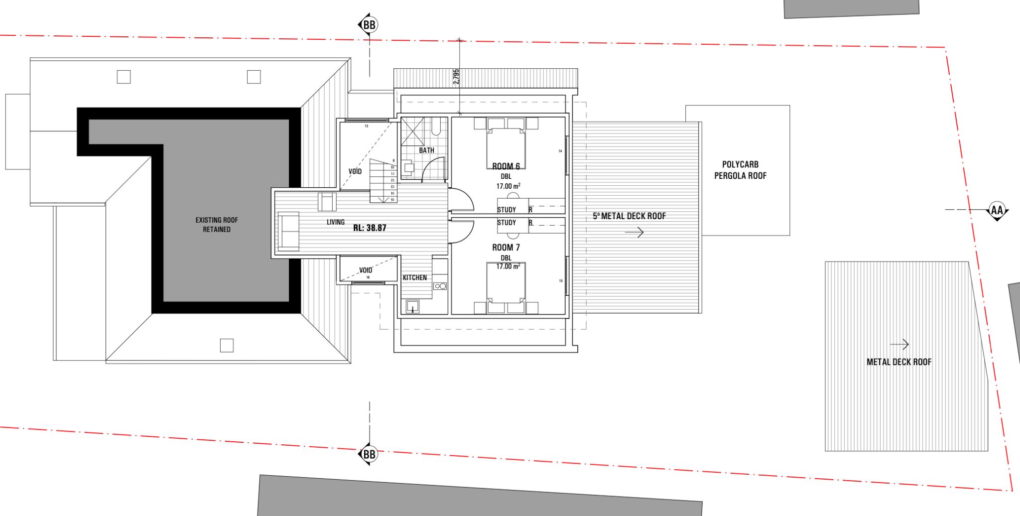
The property is composed of 4 ground floor 1br studios (which have their own kitchenette and bathrooms) and a shared kitchen, living room and 2br apartment on the second floor. Accessibility design of the 2 wheelchair accessible units is under Australian Standard 1428. There is an accessible path from the street footpath to the front door. On the ground floor hall ways, door openings are compliant with AS1428. Laundry and access to washing machine and dryer are accessible. The kitchenette in the rooms have lower bench tops. Rooms have correct circulation space. Rent is 25% of income plus rent assistance for those on government assisted income or market rent (tbd by valuation but likely to be about $300) for those on wages.
Interested in this property?
Here are your options
Ready to apply? Share your details with the provider
Property Features
Single storey
Ramp access
Outdoor living/entertainment area
Built-in robe
Direct access to yard / courtyard / garden
Private/ensuite bathroom
Private living space
Shared living space
Private kitchen
Shared kitchen
Shared laundry
Medium term
Application Criteria
We are mainly seeking applicants on government assisted incomes. Applicants need to go through the Dunroamin Housing Co-operative selection process including filling out the application form at https://docs.google.com/forms/d/e/1FAIpQLSeDwOWWFUXIB1zb34cDpmCuh3TvloVHtmHoOndQsRouSBr_9w/viewform?usp=sf_link
Successful applicants need to be willing to live in and contribute to a housing co-operative.
What's nearby
Interested in this property?
Here are your options
Ready to apply? Share your details with the provider
Area Map
Interested in this property?
Here are your options
Ready to apply? Share your details with the provider
Wheelchair accessible studios with kitchen and bathroom in a larger share house/housing co-operative






