Content

YOUR HOME, YOUR SPACE: Two Separate Homes in Beveridge’s Quiet Charm
Beveridge VIC 3753
3 bed
3 bath
2 parking
spaces
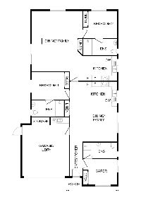
A home where independence and thoughtful design come together—29 Ambient Crescent, Beveridge, is a Robust Wheelchair-Friendly SDA residence built to redefine accessible living. With two fully self-contained residences under one roof, this home provides privacy, practicality, and comfort in equal measure, offering the perfect environment to thrive.
Step inside and experience a space designed to feel both inviting and functional. A spacious bedroom with a private ensuite creates a personal sanctuary, while the open-plan kitchen, dining, and living areas are bright and accessible, making everyday life simple and enjoyable. Your brand-new kitchen is fitted with modern appliances, ample storage, and generous bench space to suit your lifestyle.
Wide hallways, durable finishes, and smooth transitions throughout the home ensure safety and ease of mobility. A dedicated carer’s room with its own ensuite ensures 24/7 support, while the secure garage, complete with storage and laundry, adds convenience. Outside, the peaceful backyard offers a serene space to relax or connect with loved ones.
Exclusive Move-In Benefits:
Free relocation: Move in at no cost.
Zero utility bills for 12 months: Save $5,000.
No RRC or CRA for 12 months: Save $15,000.
Flexible SDA funding accepted: Making your transition seamless.
Located in Beveridge, this home is perfectly positioned to balance tranquillity and convenience. Enjoy nearby shopping centres, medical facilities, and the connectivity of the Hume Freeway and train stations. Scenic attractions like Mandalay Golf Course and Mount Fraser provide opportunities to relax and recharge.
At 29 Ambient Crescent, independence and comfort are more than just supported—they’re celebrated. This isn’t just a house; it’s a home designed to empower you to live fully and freely.
Contact us today to learn more, book a viewing, and take the next step towards comfort, care, and independence in your new home!
Interested in this property?
Here are your options
Ready to apply? Share your details with the provider
Property Features
Single storey
Ramp access
Wide doorframes
Wide pathways
Air conditioning
Heating
Secure backyard
Secure frontyard
Garden
Deck/verandah
Outdoor living/entertainment area
Undercover access from parking to property
Window
Built-in robe
Direct access to yard / courtyard / garden
Private/ensuite bathroom
Private living space
Private kitchen
Pet friendly
Robust
Provider Details
What's nearby
Lithgow Street, Beveridge VIC 3753
340 Craigieburn Road, Craigieburn VIC 3064
Interested in this property?
Here are your options
Ready to apply? Share your details with the provider
Area Map
Interested in this property?
Here are your options
Ready to apply? Share your details with the provider
YOUR HOME, YOUR SPACE: Two Separate Homes in Beveridge’s Quiet Charm
















