Content

Newly Built Architect Designed home with one remaining vacancies
Frankston VIC 3199
4 bed
2 bath
2 parking
spaces
Your home is where you are supported to live a healthy life; inside and out.It’s where you connect with your friends and family.
Helvetia is an architecturally designed property, owned and managed by focus Individualised Support Services.
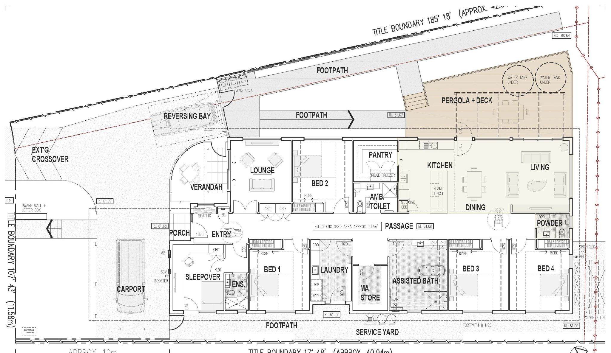
Suitable for people who require some support to undertake the activities of daily living. Helvetia is large and airy, with 2 separate living areas offering housemates plenty of space to relax.
4 large bedrooms with B.I.R.’s, split system heating/cooling
2 separate living areas
Open Plan kitchen which includes height adjustable bench and overhead cupboard, and a large walk in pantry with open shelving.
Private outdoor courtyard.
Large outdoor deck.
Hydronic heating
Split system air conditioning
Assisted bathroom
Ambulant bathroom
Powder room
Walking distance to public transport, shops and restaurants.
Please see floor plan for further details.
Conveniently located within walking distance to public transport, shops and restaurants.
Minutes from chemist, local hospital and other allied health services.
focus has been in the business of providing supportive homes for people for over forty years.
It all begins with getting to know you. When you tell us your goals and how you would like us to support you, together we can start planning how to make it happen.
Home is where your family are welcomed and encouraged to drop in and get involved in your life in any way you want them to.
Home is where you are supported to build your independence. It’s where you connect with your friends and family.
Get in touch. We’d like to meet you.
Interested in this property?
Here are your options
Ready to apply? Share your details with the provider
Property Features
Single storey
Wide doorframes
Wide pathways
Air conditioning
Heating
Secure backyard
Secure frontyard
Garden
Deck/verandah
Outdoor living/entertainment area
Undercover access from parking to property
Storage for personal equipment
Built-in robe
Shared bathroom
Shared living space
Shared kitchen
Shared laundry
Provider Details
What's nearby
Delacombe Park
Frankston hospital 5 minute drive
Chemist walking distance
Interested in this property?
Here are your options
Ready to apply? Share your details with the provider
Area Map
Interested in this property?
Here are your options
Ready to apply? Share your details with the provider
Newly Built Architect Designed home with one remaining vacancies















