Content

1 Bed/ 1 Bath (+OOA) High Physical Support Villa in Pascoe Vale South!
Pascoe Vale South VIC 3044
1 bed
1 bath
1 parking
space
This exceptional inner city 1 Bed/1 Bath (+OOA) High Physical Support Villa is centrally located in peaceful Pascoe Vale South!
3 Reasons You’ll Love Living Here:
1. Central but quiet suburban life - Pascoe Vale South is a peaceful suburb, yet only 10km from the CBD!
2. Your bedroom features a sliding door that opens directly onto a charming covered alfresco area, providing seamless access to your own private outdoor space
3. Live solo in this villa - enjoy total independence!
Other Features of the Home Include:
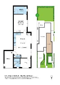
Kitchen/Living/Dining:
Height adjustable electric kitchen benches, sinks & dining table
Extensive worktop space
Accessible storage solutions
Accessible appliances
Modern kitchen fixtures and fittings
Communal furniture & smart TV
Bedroom & Ensuite:
1 oversized bedroom with private ensuite
Built-in robes with electric robe rail
Provision for ceiling hoist, door & window automation
Intercom
Non-slip, level flooring with no thresholds
Roll-in shower, adjustable shower head & height adjustable sink
Easy-to-reach storage
Throughout the home:
Modern floorplan, contemporary façade and fresh colour scheme
Bright, open, well-lit spaces & 2740mm ceiling height
Generous alfresco with views of the landscaped garden
Wide hallway and doors
Accessible door & window handles and light switches
Fire sprinkler system
Individually controlled heating and cooling system
Uninterrupted Power Supply (UPS) battery backup system
Solar panels for energy efficiency
Garage for secure parking and storage
NBN connectivity for reliable internet
Accessible clothesline
All our dwellings have OOA room with ensuite - space, comfort & privacy for staff in our dwellings is a priority.
View property layout here: https://www.youtube.com/watch?v=vHtvASDQeA8
This property has been custom designed to flow seamlessly around the way you live. Built to the latest NDIA standards, these homes prioritise functionality, independence and accessibility for our residents, with assistive technology and automation integrated throughout.
To find out more about this stunning new build, click Enquire Now or contact our Relationship and Engagement Team on 03 8639 0131 or info@inplaceliving.com.au
Please note, in order to be eligible for this property, you must have SDA funding in your NDIS plan. MTA is also considered for this property in advance of approved SDA funding.
Interested in this property?
Here are your options
Ready to apply? Share your details with the provider
Property Features
Single storey
Ceiling hoist
Wide doorframes
Wide pathways
Air conditioning
Heating
Secure backyard
Garden
Deck/verandah
Outdoor living/entertainment area
Undercover access from parking to property
Storage for personal equipment
Window
Built-in robe
Direct access to yard / courtyard / garden
Private/ensuite bathroom
Private living space
Private kitchen
Private laundry
Pet friendly
Medium term
Provider Details
What's nearby
Interested in this property?
Here are your options
Ready to apply? Share your details with the provider
Area Map
Interested in this property?
Here are your options
Ready to apply? Share your details with the provider
1 Bed/ 1 Bath (+OOA) High Physical Support Villa in Pascoe Vale South!





