Content

Coming This November: HPS Duplex in Cranbourne
Cranbourne VIC 3977
6 bed
6 bath
2 parking
spaces
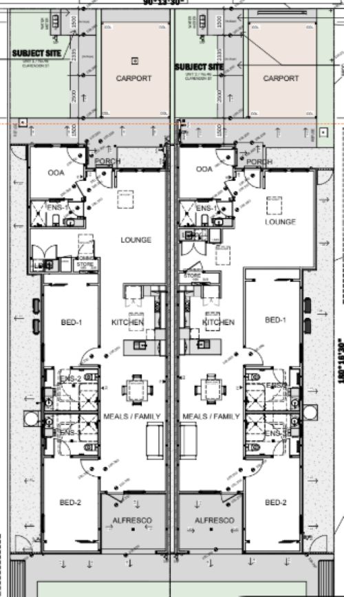
Coming this November - Cozy 2 bed Duplex in Cranbourne.
Each dwelling features two participant bedrooms with ensuites and their own private patios. Two living spaces and a one car garage.
Located just 3 minutes to the local shopping center, 25 minutes to the Frankston Hospital and less than 1km to the nearest bus stop.
Available to participants with High Physical Support, Fully Accessible and Improved Liveability funding.
Don't have SDA funding? Get in touch - we may still be able to help!
SDA Provider - Care Central
Interested in this property?
Here are your options
Ready to apply? Share your details with the provider
Property Features
Single storey
Wide doorframes
Wide pathways
Air conditioning
Heating
Secure backyard
Deck/verandah
Outdoor living/entertainment area
Undercover access from parking to property
Storage for personal equipment
Window
Built-in robe
Direct access to yard / courtyard / garden
Private/ensuite bathroom
Shared living space
Shared kitchen
Shared laundry
Provider Details
Interested in this property?
Here are your options
Ready to apply? Share your details with the provider
Area Map
Interested in this property?
Here are your options
Ready to apply? Share your details with the provider
Coming This November: HPS Duplex in Cranbourne

