Content

WINTER VALLEY – BRAND NEW ROBUST SDA HOME – AVAILABLE NOW
Winter Valley VIC 3358
2 bed
3 bath
2 parking
spaces
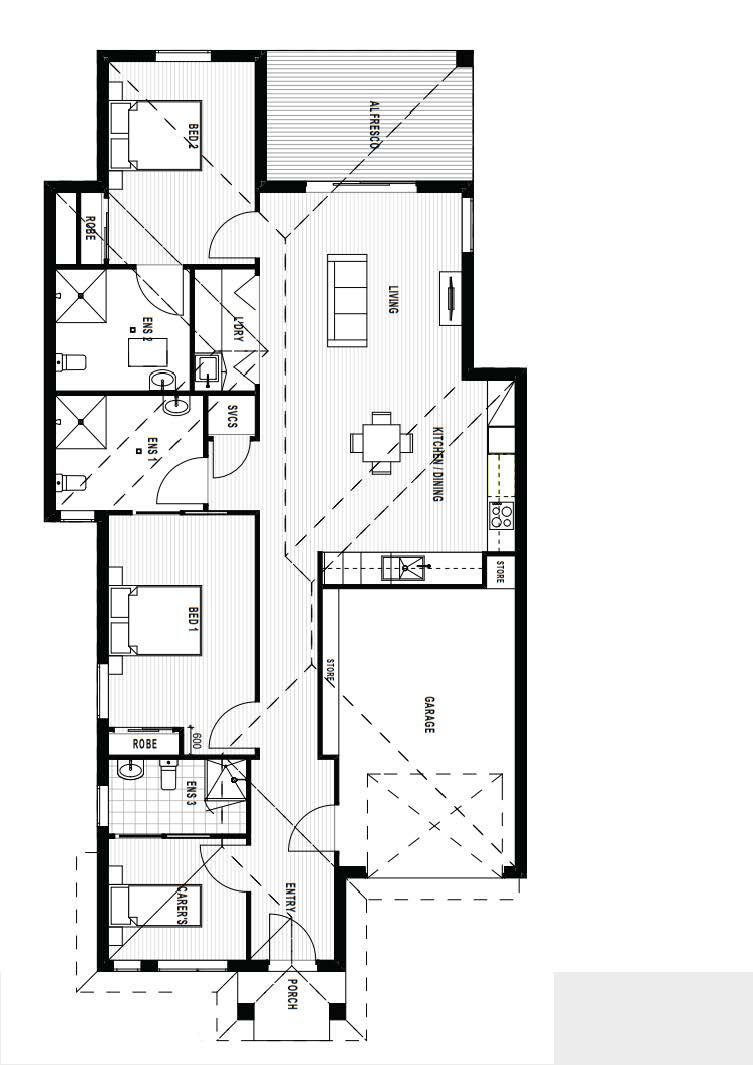
SDA Strategy is proud to introduce this brand-new Specialist Disability Accommodation (SDA) home in the thriving community of Winter Valley.
Purpose-built for Robust needs, this residence offers comfort, accessibility, and in...
Interested in this property?
Here are your options
Ready to apply? Share your details with the provider
Property Features
Single storey
Air conditioning
Heating
Secure backyard
Undercover access from parking to property
Private/ensuite bathroom
Shared living space
Shared kitchen
Interested in this property?
Here are your options
Ready to apply? Share your details with the provider
Area Map
Interested in this property?
Here are your options
Ready to apply? Share your details with the provider
WINTER VALLEY – BRAND NEW ROBUST SDA HOME – AVAILABLE NOW
