Content
 
        
        
      
        BRAND NEW HOME..... MAKE IT YOURS!
Beenleigh QLD 4207
3 bed
3 bath
2 parking
spaces
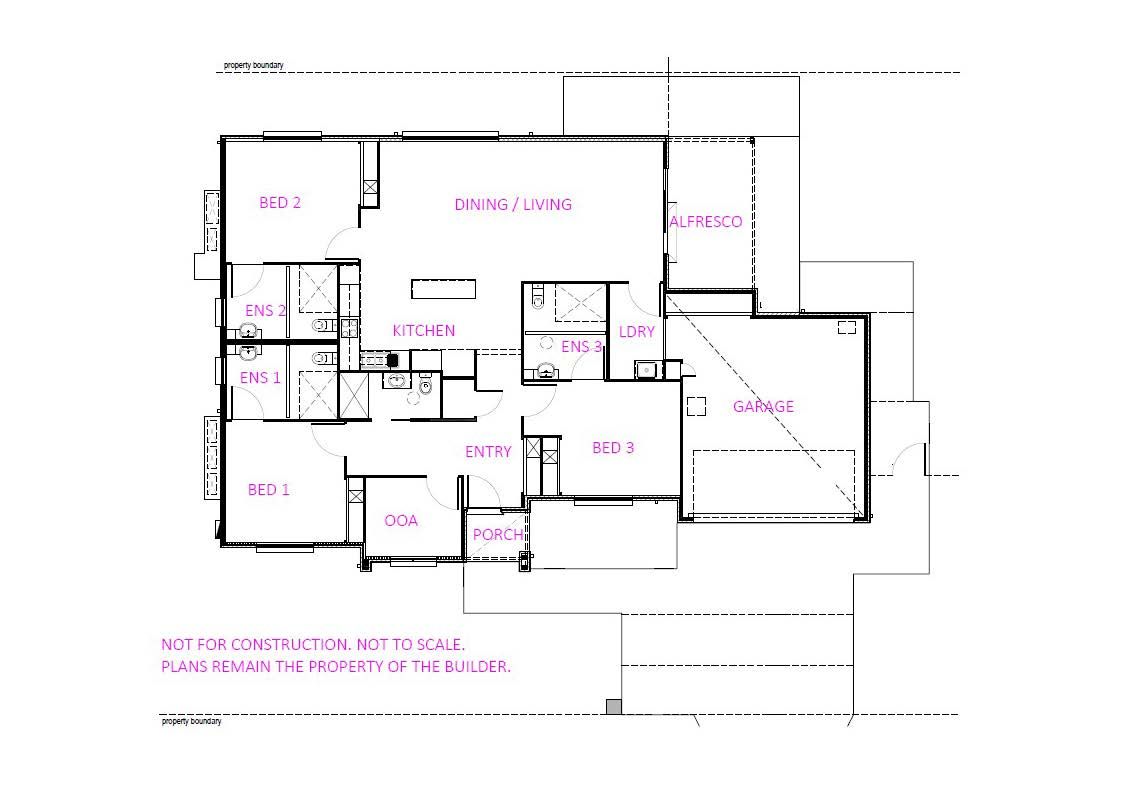
This beautifully designed, modern, spacious and accessible SDA home is brand new and ready to move into. With two current vacancies, the home is located in the vibrant suburb of Beenleigh close to shopping, dining and medical services.
Featuring 3 large bedrooms, all with ensuites, which are located in separate areas of the house, residents will have plenty of privacy. A spacious open plan living area leads onto a large alfresco area and backyard with two separate outdoor seating areas.
Offering a friendly environment for participants requiring complex care and daily assistance, you'll be able to balance independence and safety, with 24/7 support by experienced support workers.
Property Features
* Step-free entry and wide hallways for easy mobility access
* Spacious open-plan living and kitchen layout with adjustable height kitchen bench
* Each bedroom features a private, fully accessible ensuite bathroom, designed specifically for either right-sided or left-sided weakness, supporting individual participant needs
* Air conditioning and ceiling fans throughout
* Large, secure backyard with shaded outdoor area
* Designated kitchen cupboards for each participant’s food storage
* Overnight staff room and continuous on-site support
* Assistive technology
* Emergency backup power
Local Area Features
* Easy access to local shops, shopping centres, chemists, and cafes
* Beenleigh Bowls Club and Beenleigh Aquatic Centre within walking distance
* 13-minute walk to Beenleigh Train Station
* 10-minute drive to Logan Hospital
Easy access to the M1 Motorway for access to the CBD and Gold Coast
Ideal Participants
* Immediate capacity for 2 participants
* Individuals with Stroke, Spinal Cord Injury, or Neurological conditions
* Participants with moderate behaviours or cognitive impairment that can be managed through structured support
* Current resident is a male aged in his mid-60s with stroke diagnosis
Support Model (SIL Provider - Reach Ability Support)
* 24/7 SIL staffing with trained and experienced support workers
* Medication administration, personal care, mobility, and mealtime support
* Positive Behaviour Support and allied health collaboration
All staff certified in:
* Medication Assistance
* Manual Handling
* Infection Control
Support delivered by Reach Ability Support, maintaining a friendly, professional, and participant-focused environment
Interested in this property?
Here are your options
Ready to apply? Share your details with the provider
Property Features
Single storey
Wide doorframes
Wide pathways
Air conditioning
Heating
Secure backyard
Outdoor living/entertainment area
Undercover access from parking to property
Storage for personal equipment
Window
Built-in robe
Private/ensuite bathroom
Shared living space
Shared kitchen
Shared laundry
Provider Details
Application Criteria
Tenants must have SDA funding to be eligible and will be required to pay $245 p.w. (25% of disability pension + Commonwealth Rent Assistance).
What's nearby
Interested in this property?
Here are your options
Ready to apply? Share your details with the provider
Area Map
Interested in this property?
Here are your options
Ready to apply? Share your details with the provider
BRAND NEW HOME..... MAKE IT YOURS!
 
                 
                 
                 
                 
                 
                 
                 
                 
                 
                 
                 
                 
                         
                         
                         
                         
                         
                         
                         
                         
                         
                        