Skip to content

Content

HPS & Robust Community Living in beautiful Bellara, Bribie Island.

Bellara QLD 4507

4 bed

6 bath

4 parking
spaces

Ideally located in beautiful Bellara! This community living complex includes a High Physical Support home and Robust Villas. These dwellings are being developed to exceed the NDIS design standards.

Property includes 3 Onsite Overnight Assistance rooms (OOA) - each with their own private ensuite.

Apollo SDA is also open to considering tenancy applications from people with Fully Accessible or Improved Liveability SDA Funding.

With 1 x 2-bedroom HPS home and 2 x 1-bedroom Villas as well as shared community facilitIies which include, BBQ area and hydrotherapy magnesium saltwater pool, it is a great community to be a part of. Located close to the water, shops, cafes, parks and local medical facilities, these homes will be highly sought after.

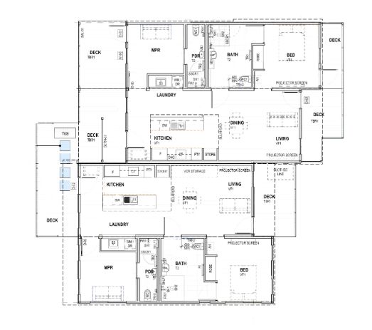
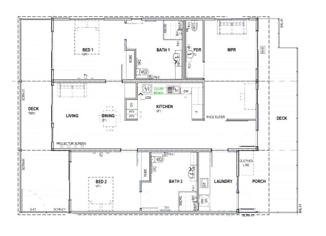
HPS House Features 

Large circulation spaces for power wheelchairs

Wide doorways and level access throughout

Fully landscaped gardens with automatic sprinklers

Large bedroom with fully accessible private ensuite bathroom

Power supply to doors and windows, for retrofit/automation

Structural provisions for ceiling hoists in bedroom

Each dwelling is fitted with solar panels to save on utility bills

Heating/Cooling ducted system includes capacity for zoning of individual rooms

Emergency power solution to cater for a minimum two-hour power outage 

Robust Features

Fully landscaped gardens with automatic sprinklers

Large bedroom with fully accessible private ensuite bathroom

Robust fittings and toilet

Each dwelling is fitted with solar panels to save on utility bills

Heating/Cooling ducted system includes capacity for zoning of individual rooms

Emergency power solution to cater for a minimum two-hour power outage

Don’t miss this opportunity to live in a high quality, newly developed SDA home tailored to your needs within a small community, where you can share experiences in a friendly environment.

Interested in this property?
Here are your options

Ready to apply? Share your details with the provider

Need more detail? Ask the property provider a question

Register to favourite

Property Features

The building

Single storey

Access

Ramp access

Automatic doors

Ceiling hoist

Wide doorframes

Wide pathways

Environment

Air conditioning

Heating

Outside

Secure backyard

Secure frontyard

Raised garden bed

Garden

Deck/verandah

Outdoor living/entertainment area

Pool

Undercover access from parking to property

Shared Living

Storage for personal equipment

Window

Built-in robe

Private/ensuite bathroom

Private living space

Shared living space

Private kitchen

Shared kitchen

Private laundry

Shared laundry

Registered SDA: Yes SDA Category: Robust
High Physical Support
Stay Duration Permanent

Provider Details

SDA Provider: Apollo SDA Pty Ltd

What's nearby

Transport Jabiru St near Bellara St, Bellara QLD, Australia
Shopping Bribie Island, Queensland, Australia
Other Caboolture QLD, Australia
Bribie Island Medical Centre, Fortune Avenue, Bongaree QLD, Australia

Area Map

Interested in this property?
Here are your options

Ready to apply? Share your details with the provider

Need more detail? Ask the property provider a question

Register to favourite