Skip to content

Content

Home in Northcote

Northcote VIC 3070

3 bed

3 bath

1 parking
space

Specialist Disability Accommodation (SDA)

Building Classification: Class 3

This modern SDA home in the growing suburb of Northcote offers a quiet residential feel while staying connected to key services and community infrastructure. The property is positioned to support comfortable, accessible living in a welcoming neighbourhood.

With easy access to shopping, medical care, and open green spaces, this home is well suited to residents who want a balance of independence, convenience, and support close by.

Support Model

Tenants at this property have choice and flexibility around how supports are delivered. The home is set up to enable shared living with privacy and comfort, and onsite overnight assistance is available to provide added reassurance and safety as needed.

Housemate matching is tenant-led: prospective tenants can meet through arranged meet-and-greets, giving everyone a chance to get to know each other and decide if the living arrangement feels right. The final choice remains with the tenants to ensure a good fit.

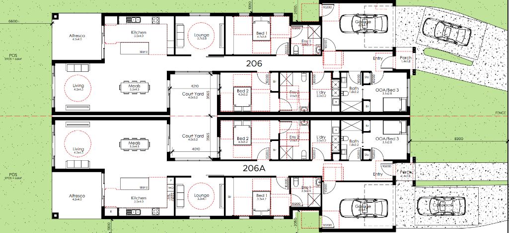
Property Features / SDA Design

This property has been designed to support safe, accessible living and is built to the following SDA standards:

SDA building type: House

SDA design category: High Physical Support

SDA funding categories accepted:

Improved Liveability

Fully Accessible

High Physical Support

Number of SDA residents: 2

Onsite Overnight Assistance: Yes

Local Area

Everyday amenities are close to home, helping residents stay connected to the community:

Northcote Shopping Plaza, Northcote VIC, Australia

Northcote Medical, Robbs Parade, Northcote VIC, Australia

All Nations Park, Separation Street, Northcote VIC, Australia

This home is managed by APPC Developments TA Life Care Assist, a trusted SDA housing provider committed to delivering safe, high-quality, and inclusive homes that support independence, dignity, and wellbeing.

Interested in this property?
Here are your options

Ready to apply? Share your details with the provider

Need more detail? Ask the property provider a question

Register to favourite

Property Features

The building

Single storey

Access

Wide doorframes

Wide pathways

Environment

Air conditioning

Heating

Outside

Secure backyard

Shared Living

Storage for personal equipment

Window

Built-in robe

Direct access to yard / courtyard / garden

Private/ensuite bathroom

Shared living space

Shared kitchen

Shared laundry

Pet friendly

Registered SDA: Yes SDA Category: Improved Liveability
Fully Accessible
High Physical Support
Stay Duration Permanent
Medium term

Provider Details

SDA Provider: Life Care Assist

Area Map

Interested in this property?
Here are your options

Ready to apply? Share your details with the provider

Need more detail? Ask the property provider a question

Register to favourite