Skip to content

Content

2+OOA Robust House in Wollert - Rare 3m Ceilings & 1300mm Wider Doors

Wollert VIC 3750

3 bed

3 bath

2 parking
spaces

This property is in a quiet, low-traffic, newly developed community, ideal for residents who are sensory sensitive, prefer low-stimulation environments, or require a calm lifestyle. The new neighbourhood offers well-planned streets, better security, and a clean, organised layout, creating a safe and comfortable setting for daily living. Essential facilities, including shopping centres, medical services, community centres, and public transport, are all easily accessible by car.

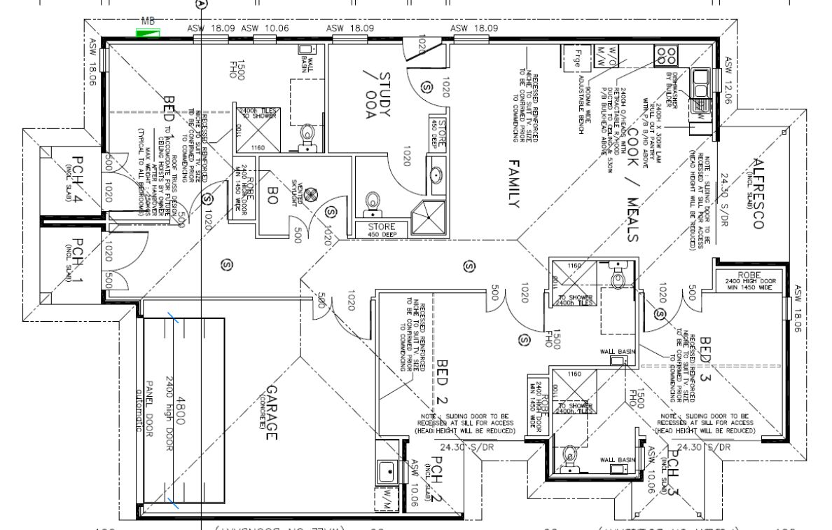
The home itself is exceptionally spacious and bright, featuring a rare 3-meter-high ceiling, giving participants a sense of openness rarely seen in typical homes. Every detail is designed for accessibility and comfort, with 1300mm wide doors throughout — especially suitable for participants with Bariatric care needs.

🔑 Key Features

• Purpose-built Robust SDA design

• Two spacious participant bedrooms designed for robust support needs

• Rare 3-meter-high ceilings enhancing space and natural light

• Extra-wide 1300mm doors for ease of movement, especially for bariatric care

• Generous circulation spaces and open-plan living

• Secure, low-maintenance outdoor area

• Located in a quiet, low-traffic, sensory-friendly neighbourhood

• Easy access to essential facilities within a short drive

🌿 Nature & Community

• Wollert Community Centre – 4 min drive

• Ganbu Gulinj Community Centre – 12 min drive

• Yan Yean Reservoir Park (Parks Victoria) – 13 min drive

🛍 Shopping & Lifestyle

• Mernda Village Shopping Centre – 10 min drive

• Mernda Junction Shopping Centre – 10 min drive

• Aurora Village – 12 min drive

• Mernda Town Centre – 12 min drive

• The Village Wollert – 12 min drive

🏥 Healthcare Services Nearby

• Keep In Motion Physiotherapy, Wollert/Mernda/Epping – 8 min drive

• Mernda Regent Street Medical – 8 min drive

• Aurora Village Medical Centre – 12 min drive

• Mernda Community Hospital – 12 min drive

• Epping Family Medical & Specialist Centre – 13 min drive

🚉 Public Transport Access

• Epping Rd / Pine Park Dr Route #356 – 6 min drive

• Mernda Railway Station – 12 min drive

📩 Enquire Now!

Interested in this property?
Here are your options

Ready to apply? Share your details with the provider

Need more detail? Ask the property provider a question

Register to favourite

Property Features

The building

Single storey

Access

Wide doorframes

Wide pathways

Environment

Air conditioning

Outside

Secure backyard

Secure frontyard

Raised garden bed

Garden

Deck/verandah

Outdoor living/entertainment area

Shared Living

Storage for personal equipment

Window

Built-in robe

Direct access to yard / courtyard / garden

Private/ensuite bathroom

Shared living space

Shared kitchen

Shared laundry

Registered SDA: Yes SDA Category: Robust Stay Duration Permanent
Medium term

Provider Details

SDA Provider: Ops Care Pty Ltd

What's nearby

Transport Epping Rd / Pine Park Dr Route #356
Mernda Railway Station
Shopping Mernda Village Shopping Centre
Other Mernda Regent Street Medical

Area Map

Interested in this property?
Here are your options

Ready to apply? Share your details with the provider

Need more detail? Ask the property provider a question

Register to favourite