Skip to content

Content

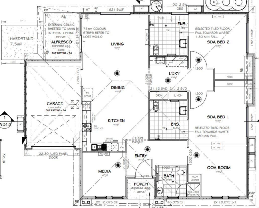
2 SDA + media room + OOA in Newtown

Newtown QLD 4350

3 bed

3 bath

2 parking
spaces

This spacious 3-bedroom house is located in Newtown, QLD, and is designed for two HPS participants, with a OOA bedroom for onsite overnight support.

Fully NDIS certified and compliant to meet the most up to date SDA guidelines.

This home has a modern interior, with the following features:

* 2 large SDA bedrooms, each with an ensuite and SDA accessibility options, split system air conditioning and capacity for ceiling hoists if required.

* OOA bedroom for onsite overnight support

* Spacious open plan living

* Separate Media room

* Modern kitchen with:

- a height-adjustable bench top,

- Caesarstone benchtops,

- strip lighting to the overhead cupboards

- bright lighting, filled with natural light

* Separate laundry, with washer and dryer provided.

Contact Kylie Peirce on 0493 028 591 or email k.peirce@horizonsdacare.com.au

Interested in this property?
Here are your options

Ready to apply? Share your details with the provider

Need more detail? Ask the property provider a question

Register to favourite

Property Features

The building

Single storey

Access

Ceiling hoist

Wide doorframes

Wide pathways

Environment

Air conditioning

Outside

Secure backyard

Outdoor living/entertainment area

Shared Living

Window

Built-in robe

Private/ensuite bathroom

Shared living space

Shared kitchen

Shared laundry

Pet friendly

Registered SDA: No Stay Duration Permanent
Medium term
Short term

Area Map

Interested in this property?
Here are your options

Ready to apply? Share your details with the provider

Need more detail? Ask the property provider a question

Register to favourite