Content

Pakenham, VIC
Pakenham VIC 3810
3 bed
3 bath
2 parking
spaces
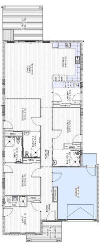
Discover an incredible opportunity in Pakenham with this brand-new 3-bedroom High Physical Support home, designed for SDA living. Each bedroom features its own ensuite and built-in robes for optimal comfort and privacy.
Fully furnished for your convenience, this modern residence includes heating and cooling throughout, along with shared living spaces that encompass a stylish kitchen, inviting lounge/dining area, and laundry.
- 3 bedrooms, each with ensuites and built-in robes
- Fully furnished for immediate move-in
- Heating and cooling for year-round comfort
- Shared kitchen, lounge/dining, and laundry areas
- Designed for high physical support needs
Interested in this property?
Here are your options
Ready to apply? Share your details with the provider
Property Features
Single storey
Lift access
Ramp access
Wide doorframes
Wide pathways
Air conditioning
Heating
Secure backyard
Raised garden bed
Garden
Deck/verandah
Undercover access from parking to property
Storage for personal equipment
Window
Built-in robe
Private/ensuite bathroom
Shared living space
Shared kitchen
Shared laundry
Pet friendly
Medium term
Short term
Provider Details
Application Criteria
Alongside our detailed triage and onboarding systems, any potential tenants are invited to a meet and greet at the house with any existing participants. Should a participant also wish for family, their support coordinator, or other trusted people involved in a meet and greet, we are happy to accommodate where possible. The existing tenants and any relevant trusted people then have a house meeting facilitated by the areas operations manager or the houses team leader to discuss the pros and cons of the new person, with a final outcome decided on in that meeting. For more in depth information on our triage and onboarding systems, please visit our website at http://www.aretecare.com.au
What's nearby
Nearest Bus Stop: McGregor Road, Pakenham VIC, Australia
Nearest Park: Bourke Park, Station Street, Pakenham VIC, Australia
Nearest Medical Practice (GP): St Antony Medical Centre, Princes Highway, Pakenham VIC, Australia
Interested in this property?
Here are your options
Ready to apply? Share your details with the provider
Area Map
Interested in this property?
Here are your options
Ready to apply? Share your details with the provider
Pakenham, VIC








