Skip to content

Content

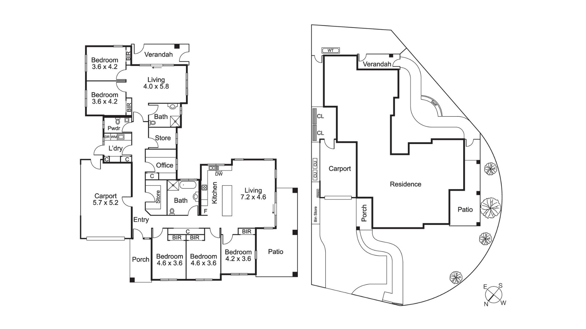
Kotara - shared 5-bedroom home

Kotara NSW 2289

5 bed

3 bath

1 parking
space

Discover comfortable, accessible supported independent living in the heart of Kotara. This modern single-storey home is thoughtfully designed for ease, safety, and independence, offering full wheelchair accessibility throughout. With five spacious bedrooms and three well-appointed bathrooms, residents enjoy both privacy and shared living in a welcoming environment.

Our home provides 24/7 support from experienced CPA staff, tailored to individual needs while encouraging independence and community participation. Located just minutes from Kotara train station and Westfield, you’ll have convenient access to shopping, transport, cafés, and essential services, including nearby John Hunter Hospital.

Enjoy a secure backyard with a covered outdoor entertaining area, perfect for relaxing or socialising. Pet-friendly and inviting, this home is ideal for those seeking a supportive, connected lifestyle in a vibrant local community. We welcome residents looking for comfort, connection, and a place to truly feel at home everyday.

PROPERTY FEATURES

- 5 bedrooms

- 3 bathrooms

- Shared living and dining areas

- Air conditioning & heating

- Shared vehicle

- Fully wheelchair accessible and wide doorframes

- Large backyard with covered outdoor entertaining area

- Pet friendly

ACCESS

- Single-storey home with open plan living area

- Wheelchair accessible and wide doorframes

- Arjo bath & ceiling hoist

- 24/7 support from CPA staff

- Shared vehicle for appointments and outings

- Electric shutters on rear bedroom windows for shade and noise

LIVING SPACE

- Shared living & dining areas with open plan layout

- Laundry

- Bathroom with arjo bath

ABOUT THE AVAILABLE ROOM

- Bedroom 4

- Windows with natural light

- Built-in wardrobes

Images shown are indicative only.

YOUR HOUSEMATES

- Male & female

SURROUNDING AREA

Located in a vibrant and well-connected part of Kotara, this SIL home offers easy access to Kotara train station, nearby bus stops, and the popular Westfield shopping centre. Residents benefit from close proximity to John Hunter Hospital and a range of local amenities, all within a bustling, convenient neighbourhood that supports both independence and community connection.

View all CPA SIL vacancies: https://cerebralpalsy.org.au/services/accommodation/supported-independent-living/vacancies-overview/

Interested in this property?
Here are your options

Ready to apply? Share your details with the provider

Need more detail? Ask the property provider a question

Register to favourite

Property Features

The building
Single storey
Access
Ceiling hoist Wide doorframes Wide pathways
Environment
Air conditioning Heating
Outside
Secure backyard Raised garden bed Outdoor living/entertainment area
Shared Living
Built-in robe Shared bathroom Shared living space Shared kitchen Shared laundry Pet friendly
Registered SDA: Yes
SDA Category: High Physical Support
Stay Duration Permanent

Provider Details

SDA Provider: Home in Place SIL Provider: Cerebral Palsy Alliance

What's nearby

Transport Kotara Train Station
Shopping Westfield Kotara
Other John Hunter Hospital

Area Map

Interested in this property?
Here are your options

Ready to apply? Share your details with the provider

Need more detail? Ask the property provider a question

Register to favourite