Skip to content

Content

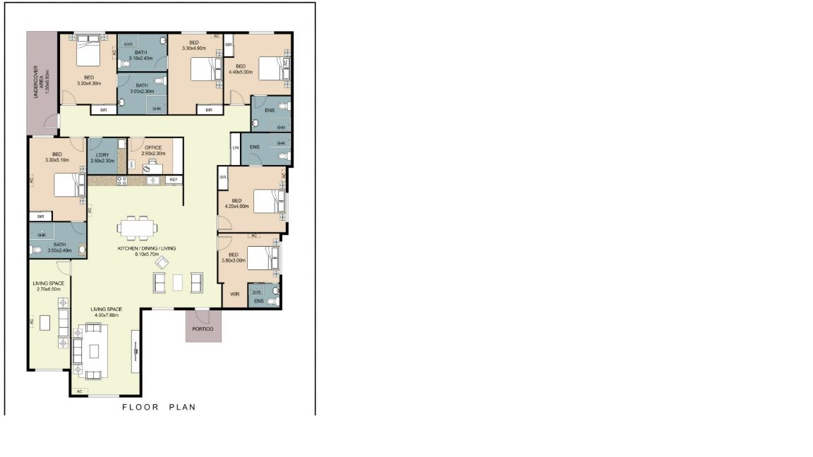
SDA Accommodation Tregear

Tregear NSW 2770

6 bed

5 bath

2 parking
spaces

Brand new accommodation, in Sydney suburban area, local to shops, train, buses, medical center and Westfield.

The accommodation offers OOA and breakout room, with wide bedroom option. The rooms are also fitted with ceiling hoist option.

Interested in this property?
Here are your options

Ready to apply? Share your details with the provider

Need more detail? Ask the property provider a question

Register to favourite

Property Features

The building

Single storey

Access

Ramp access

Automatic doors

Ceiling hoist

Wide doorframes

Wide pathways

Environment

Air conditioning

Heating

Outside

Secure backyard

Secure frontyard

Garden

Deck/verandah

Outdoor living/entertainment area

Shared Living

Storage for personal equipment

Window

Built-in robe

Private/ensuite bathroom

Shared living space

Shared kitchen

Shared laundry

Pet friendly

Registered SDA: Yes SDA Category: Improved Liveability
Fully Accessible
Robust
High Physical Support
Stay Duration Permanent
Medium term

Provider Details

SDA Provider: Asayish Comfort Care SIL Provider: Asayish Comfort Care

Application Criteria

The accommodation offers on-site clinical nurse, support workers that have intensive experience with high physical support needs, dementia, vision and hearing impairment as well as mental health experienced.

What's nearby

Transport Bus stop and station
Shopping Ropes crossing Coles

Area Map

Interested in this property?
Here are your options

Ready to apply? Share your details with the provider

Need more detail? Ask the property provider a question

Register to favourite