Skip to content

Content

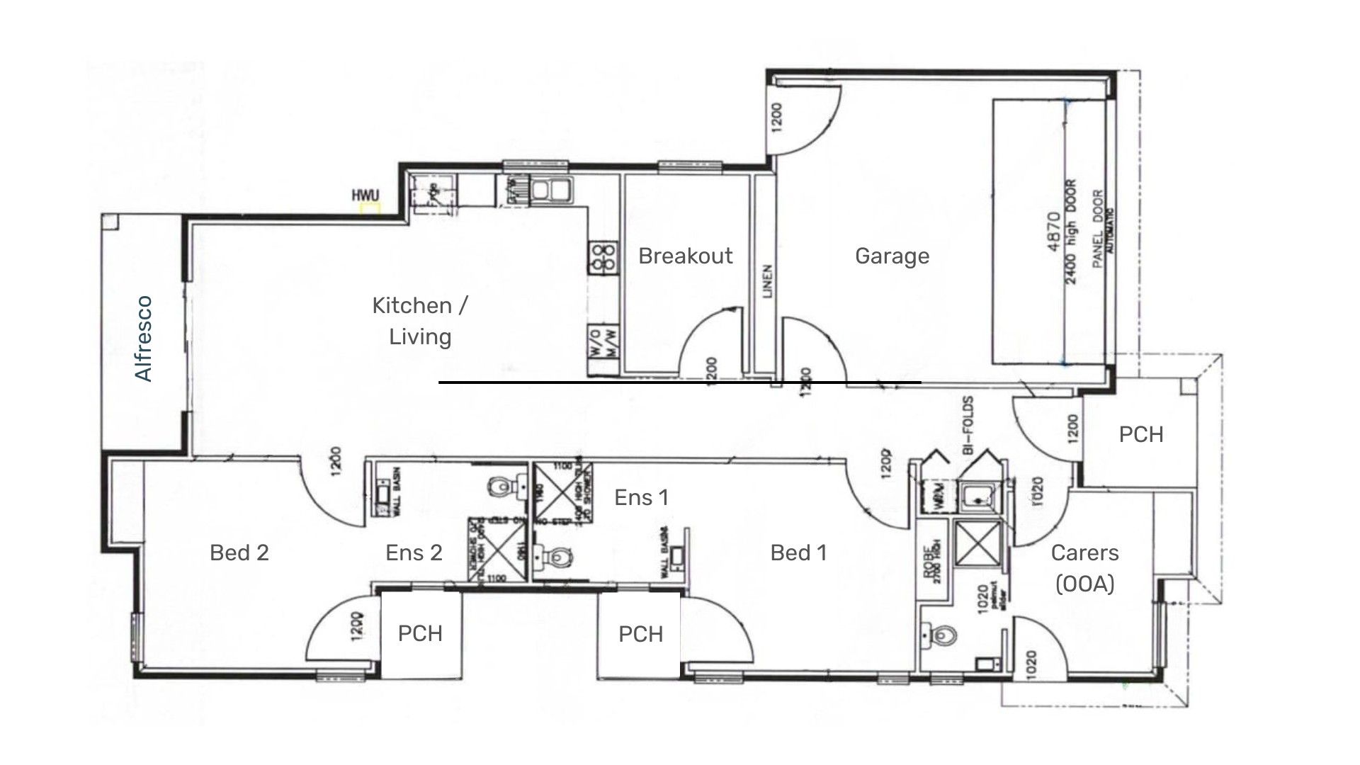
Winter Valley 63 | Robust 2-Resident

Winter Valley VIC 3358

2 bed

3 bath

2 parking
spaces

Step into a welcoming Robust SDA house in Winter Valley, Ballarat. Designed for 2 residents, this home offers private ensuites, a breakout room for shared or quiet time, Onsite Overnight Assistance, and all built with accessibility and comfort in mind.

Enjoy modern living with spacious bedrooms, wide access points, quality fixtures, and thoughtfully designed communal spaces.

Property Features

- Robust SDA category, tailored for accessibility and support

- 2 resident bedrooms, each with a private ensuite

- Breakout room for hobbies, or quiet retreat

- Onsite Overnight Assistance (OOA)

- Well-appointed fixtures, accessible layout, user-friendly design

Located in Winter Valley with the perks of modern amenity and peaceful surroundings:

- Shops & Services: Winter Valley is part of Ballarat’s western growth corridor. Delacombe Town Centre is nearby, offering major retail, supermarkets, and services. Local shops, cafés, and amenities are growing as the suburb develops.

- Transport & Access: Public transport via Ballarat bus services connects Winter Valley with the Ballarat CBD and surrounding areas.

- Nature & Lifestyle: This suburb blends open green spaces, wetlands and parklands with new housing developments.

Residents enjoy quiet surroundings, landscaped reserves, and the sense of space alongside modern estates. Winter Valley’s lots are often spacious and homes are part of planned communities with walking paths, wetland areas and landscaped public spaces

Interested in this property?
Here are your options

Ready to apply? Share your details with the provider

Need more detail? Ask the property provider a question

Register to favourite

Property Features

The building
Single storey
Access
Wide doorframes Wide pathways
Environment
Air conditioning Heating
Outside
Secure backyard Garden Deck/verandah Outdoor living/entertainment area Undercover access from parking to property
Shared Living
Storage for personal equipment Window Built-in robe Direct access to yard / courtyard / garden Private/ensuite bathroom Shared living space Shared kitchen Shared laundry Pet friendly
Registered SDA: Yes
SDA Category: Robust
Stay Duration Permanent

Area Map

Interested in this property?
Here are your options

Ready to apply? Share your details with the provider

Need more detail? Ask the property provider a question

Register to favourite