Content

Welcome to Your Future SIL Home in Wyndham Vale
Stratford VIC 3862
3 bed
2 bath
1 parking
space
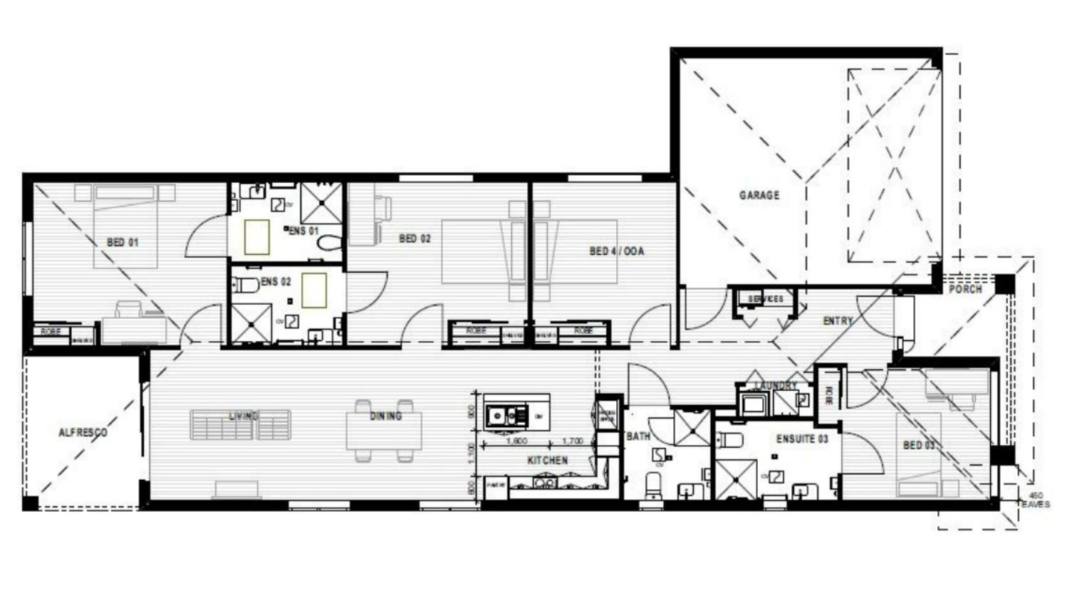
Step into refined comfort with this purpose-built SDA Robust or Improved Livability home, nestled in the heart of Wyndham Vale. Offering modern amenities and bespoke features, this property is masterfully designed to cater to the needs of NDIS participants seeking quality, independence, and style.
Discover a thoughtfully designed 3-bedroom Supported Independent Living (SIL) home in the heart of Wyndham. Built for comfort, security, and independence, this residence is ideal for NDIS participants who require 24/7 SIL support with SDA or without SDA budget.
Interested in this property?
Here are your options
Ready to apply? Share your details with the provider
Property Features
Two storey
Lift access
Stair access
Wide doorframes
Wide pathways
Air conditioning
Compatible to Environmental Control Units (ECU)
Heating
Deck/verandah
Short term
Provider Details
What's nearby
7km to the nearest hospital at Werribee Mercy Hospital, Princes Highway, Werribee VIC, Australia
Interested in this property?
Here are your options
Ready to apply? Share your details with the provider
Area Map
Interested in this property?
Here are your options
Ready to apply? Share your details with the provider
Welcome to Your Future SIL Home in Wyndham Vale

















