Content

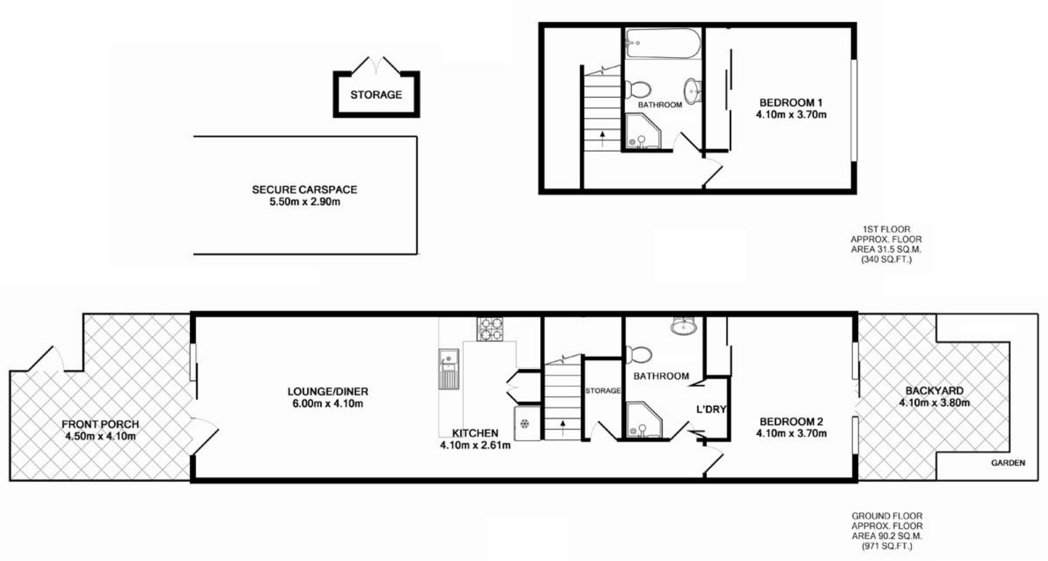
Homebush West
Homebush West NSW 2140
2 bed
2 bath
1 parking
space
Situated in the vibrant suburb of Homebush West, our accommodation offers the perfect blend of tranquility and convenience. Enjoy the privacy of a private courtyard off your bedroom, providing a serene retreat within your living space.
With easy access to public transport, you're just minutes away from Sydney's bustling city center, making it simple to stay connected with family and friends.
Interested in this property?
Here are your options
Ready to apply? Share your details with the provider
Property Features
Single storey
Air conditioning
Heating
Garden
Outdoor living/entertainment area
Direct access to yard / courtyard / garden
Private/ensuite bathroom
Private living space
Private kitchen
Private laundry
Pet friendly
Medium term
Provider Details
What's nearby
Interested in this property?
Here are your options
Ready to apply? Share your details with the provider
Area Map
Interested in this property?
Here are your options
Ready to apply? Share your details with the provider
Homebush West



