Skip to content

Content

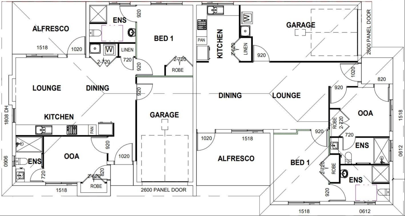
1 SDA (Robust) + OOA Duplex Villa, in Gulliver QLD

Gulliver QLD 4812

2 bed

2 bath

1 parking
space

This comfortable smart living SDA villa is fully air conditioned, with security screens, and wheelchair accessible to all internal and external areas. can house one SDA participant at the High Physical Support level, with an OOA Room for a support worker or family member. It is completely secure with a garage panel lift door.

* 1 SDA (Robust or Improved Liveability) bedroom, with SDA ensuite, SDA accessibility options, and split system air conditioning.

* OOA bedroom for onsite overnight support

* Open plan living

* Modern Kitchen with Caesarstone benchtop and Dishwasher.

* Laundry, with washer and dryer provided.

Horizon SDA is here to help you obtain Specialist Disability Accommodation. Our houses are light and airy; open plan and very spacious. We are SDA Developers and a registered SDA Provider who specialise in High Physical Support homes. All our SDA houses are designed to the highest specifications and physical support SDA certification criteria and are totally independently 3rd party approved.

Contact Kylie Peirce on 0493 028 591 or k.peirce@horizonsdacare.com.au for more information

Interested in this property?
Here are your options

Ready to apply? Share your details with the provider

Need more detail? Ask the property provider a question

Register to favourite

Property Features

The building

Single storey

Access

Wide doorframes

Wide pathways

Environment

Air conditioning

Outside

Secure backyard

Outdoor living/entertainment area

Shared Living

Storage for personal equipment

Window

Built-in robe

Private/ensuite bathroom

Private living space

Private kitchen

Private laundry

Pet friendly

Registered SDA: Yes SDA Category: Improved Liveability
Robust
Stay Duration Permanent
Medium term
Short term

Area Map

Interested in this property?
Here are your options

Ready to apply? Share your details with the provider

Need more detail? Ask the property provider a question

Register to favourite