Content

SDA HPS 3 Bedroom House plus OOA Wyndham Vale, Vic | 103
Wyndham Vale VIC 3024
3 bed
3 bath
0 parking
space
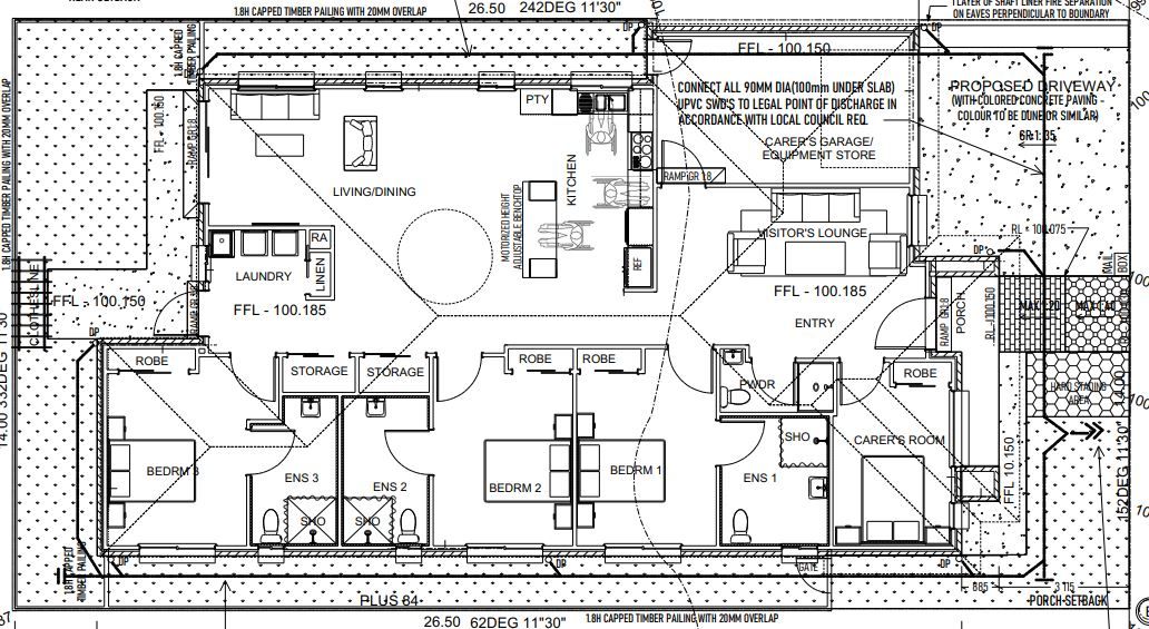
Discover an exceptional opportunity to secure a top-tier SDA High Physical Support property, perfectly designed for the needs of NDIS participants. This thoughtfully constructed residence offers the ultimate in comfort, accessibility, and modern living.
✨Property Features:
🛏️ 3 SDA Bedrooms: Each bedroom is equipped with built-in robes and ensuites, ensuring privacy and convenience.
👩⚕️ Onsite Overnight Assistance (OOA): Includes a built-in robe and a separate bathroom, providing ample space for support workers or visitors.
🍽Open Plan Living/Kitchen: Features a dishwasher and a height-adjustable benchtop to accommodate various needs and preferences.
🛋Second Lounge Area: An additional lounge area offering extra space for relaxation or social activities.
❄️ Heating and Air Conditioning: Enjoy year-round comfort with efficient heating and air conditioning systems.
🚨Fire Sprinklers: Safety is paramount with an integrated fire sprinkler system.
⚡Emergency Power Backup: Ensure continuous power supply even during outages with an emergency power backup system.
📞 Intercom System: Stay connected easily throughout the property with a modern intercom system.
🛗 Ceiling Hoist Ready The property is ceiling hoist ready, enhancing mobility support and reducing manual handling needs for residents and carers.
🎥 External Security Cameras Security and peace of mind are enhanced with cameras fitted to the external of the property.
🌳 Outdoor Area: Take in the fresh air and enjoy the outdoors in the beautifully designed outdoor space.
This property offers an unparalleled living experience for NDIS participants, combining functionality, safety, and style. Do not miss out on the chance to call this remarkable residence your new home. 📞 What are you waiting for? Call us today to know more about the property. 🏡✨
Interested in this property?
Here are your options
Ready to apply? Share your details with the provider
Property Features
Single storey
Ramp access
Wide doorframes
Wide pathways
Air conditioning
Heating
Outdoor living/entertainment area
Built-in robe
Private/ensuite bathroom
Shared living space
Shared kitchen
Pet friendly
Provider Details
What's nearby
1.6km from bus stop
1.9km from medical centre
Interested in this property?
Here are your options
Ready to apply? Share your details with the provider
Area Map
Interested in this property?
Here are your options
Ready to apply? Share your details with the provider
SDA HPS 3 Bedroom House plus OOA Wyndham Vale, Vic | 103









