Skip to content

Content

A Haven of Independence: Two Separate HPS Homes in Wollert’s Growing Horizon

Wollert VIC 3750

3 bed

3 bath

2 parking
spaces

Super Robust SDA | Two Independent Spaces on One Title | OOA | Move-In Ready

Not all Robust SDA is the same. This Super Robust home has been built stronger, quieter, and safer for participants who need stability, predictability, and real independence.

Designed and delivered by Necessity Housing, this is Super Robust done properly. Reinforced construction, advanced acoustic insulation, impact-resistant materials, and behaviour-support-ready design create a calm, durable environment built for long-term living, not short-term fixes.

Eligible participants may access move-in incentives (conditions apply), including no RRC or CRA for the first 12 months, utilities covered, moving costs included, full furnishings, and optional upgrade pathways to support a smoother transition.

The home features high-density impact walling, extensive acoustic treatment, vandal-resistant fixtures, commercial-grade flooring, split systems in every room, lockable kitchen and garage storage, motorised blinds, external lighting, roller shutters, reinforced doors, and a private OOA entry for discreet 24/7 support.

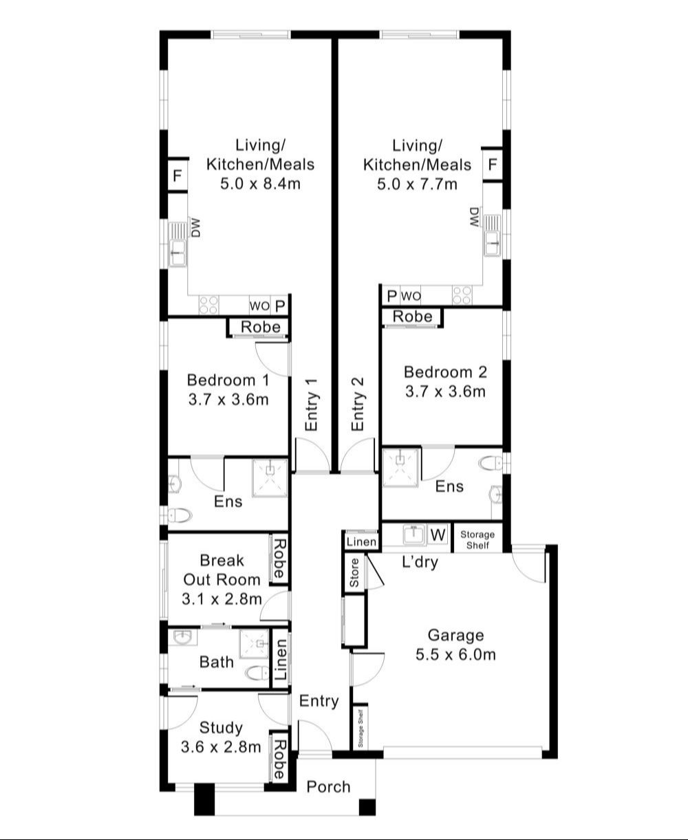
What truly sets this property apart is the layout. It includes two completely independent homes on one title, positioned back-to-back. Each residence has its own kitchen, living area, bedroom, and private accessible ensuite. No kitchens, bathrooms, or living spaces are shared. Only the backyard and OOA support point are common.

This design gives participants full control over their routines and environment, while supporting safer, cleaner SIL operations with fewer triggers, fewer incidents, and more predictable care.

A Super Robust home built for calm, privacy, and long-term independence — not shared-living compromise.

Interested in this property?
Here are your options

Ready to apply? Share your details with the provider

Need more detail? Ask the property provider a question

Register to favourite

Property Features

The building

Single storey

Access

Ramp access

Ceiling hoist

Wide doorframes

Wide pathways

Environment

Air conditioning

Heating

Outside

Secure backyard

Secure frontyard

Garden

Deck/verandah

Outdoor living/entertainment area

Undercover access from parking to property

Shared Living

Window

Built-in robe

Direct access to yard / courtyard / garden

Private/ensuite bathroom

Private living space

Private kitchen

Pet friendly

Registered SDA: Yes SDA Category: Robust Stay Duration Permanent

Provider Details

SDA Provider: Necessity Housing

What's nearby

Local terrain Kendon Park – 1240W Edgars Rd, Wollert VIC 3750
Bellavista Park – 1W Bellavista Dr, Wollert VIC 3750
Transport Mernda Railway Station – adjacent to Plenty Rd, Mernda VIC 3754
Shopping Craigieburn Central 340 Craigieburn Rd, Craigieburn VIC 3064
Aurora Village Shopping Precinct Edgars Rd, Wollert VIC 3750
Other Aurora Village Medical Center – Shop 8/315 Harvest Home Rd, Wollert VIC 3750
The Northern Hospital – Epping 185 Cooper St, Epping VIC 3076

Area Map

Interested in this property?
Here are your options

Ready to apply? Share your details with the provider

Need more detail? Ask the property provider a question

Register to favourite