Skip to content

Content

Two Completely Independent Robust SDA Homes – One Title, Total Privacy

Armstrong Creek VIC 3217

3 bed

3 bath

2 parking
spaces

This is not a standard shared SDA home.

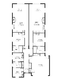
This has been purpose-built as two completely independent living environments under one roof, delivered on a single title and certified under the NDIS Robust design category at Final As Built stage, each designed for 1 occupant per residence (with 1 currently occupied and 1 available). The design provides genuine independence while still allowing structured 24/7 support.

Inside the home are two fully separate living environments, each designed for 1 occupant. Each participant has their own private entry, bedroom, ensuite, kitchen, living and meals area, secure outdoor access and acoustic separation between bedrooms. There are no shared kitchens, lounges or bathrooms. The homes operate independently, with the only shared element being the roof.

The property has been assessed and certified at Final As Built stage by an Accredited SDA Assessor. The assessment confirms two participant bedrooms (excluding the OOA), a dedicated Onsite Overnight Assistance room that is not shared with another dwelling, sound insulation to participant bedrooms, reinforced sanitary areas, high-impact wall linings and slip-resistant surfaces where required.

Each participant bedroom is designed for privacy and durability, featuring reinforced walls, acoustic insulation and direct access to a private ensuite. Bathrooms include step-free showers, slip-resistant flooring, reinforced backing and clear circulation space to support both independent use and assisted care.

Each side of the home also includes its own kitchen, meals and living area with stainless steel appliances and durable finishes, allowing participants to cook, relax and host visitors within their own environment. Separate entries reinforce the independence of each living space.

A dedicated Onsite Overnight Assistance room provides 24/7 support capability while maintaining participant privacy.

Externally, the home features accessible pathways from the driveway to both entries, a fully fenced perimeter and secure yard on a low-maintenance 437m² block in a quiet Armstrong Creek residential street.

This is a purpose-built Robust SDA home delivering two completely independent living environments under one roof, designed for real independence and effective support delivery.

Interested in this property?
Here are your options

Ready to apply? Share your details with the provider

Need more detail? Ask the property provider a question

Register to favourite

Property Features

The building
Single storey
Access
Ramp access Wide doorframes Wide pathways
Environment
Air conditioning Heating
Outside
Secure backyard Undercover access from parking to property
Shared Living
Storage for personal equipment Window Built-in robe Direct access to yard / courtyard / garden Private/ensuite bathroom Private living space Private kitchen Shared laundry Pet friendly
Registered SDA: Yes
SDA Category: Robust
Stay Duration Permanent
Medium term

Provider Details

SDA Provider: Necessity Housing

What's nearby

Local terrain Bunjils Nest Playground (Warralily Estate) Warralily Boulevard, Armstrong Creek VIC 3217 Approx 5 minutes by car Accessible open space with walking paths.
Shopping Armstrong Creek Town Centre 33 Central Boulevard, Armstrong Creek VIC 3217 Approx 4 minutes by car Approx 9 minutes by bike Includes Woolworths, pharmacy, medical clinic, cafes, takeaway and daily retail.
Other Armstrong Creek Medical Centre 33 Central Boulevard, Armstrong Creek VIC 3217 Approx 4 minutes by car GP and allied health services.

Area Map

Interested in this property?
Here are your options

Ready to apply? Share your details with the provider

Need more detail? Ask the property provider a question

Register to favourite