Skip to content

Content

Independent by Design — Dual Robust Homes, One Title

Armstrong Creek VIC 3217

3 bed

3 bath

2 parking
spaces

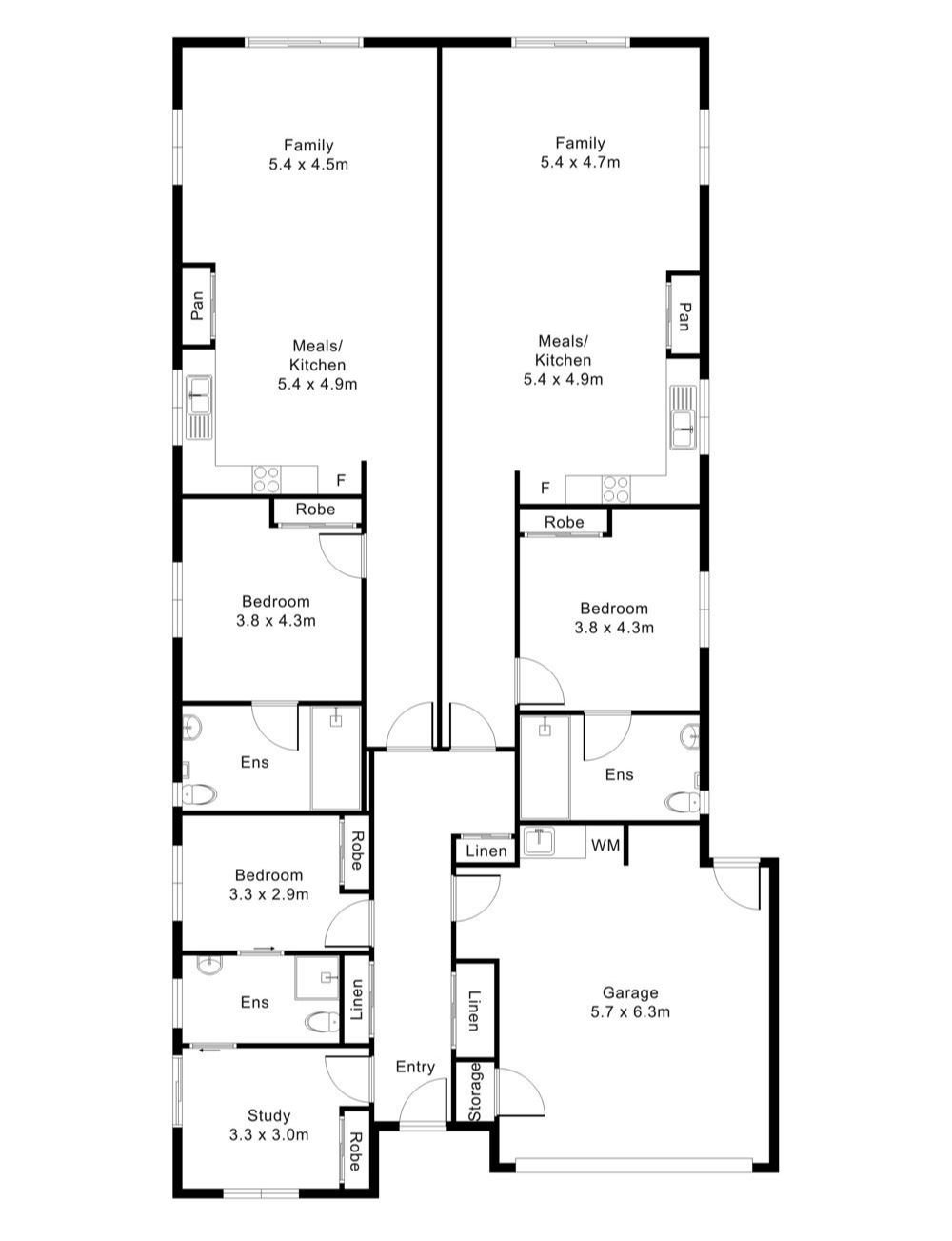
This is not a traditional shared SDA layout.

Certified under the Robust SDA design category at Final As Built stage, this purpose-built home delivers two completely independent living environments under one roof on a single title. Each participant has their own private bedroom, ensuite, kitchen, living area and secure outdoor access, while a dedicated Onsite Overnight Assistance room allows 24/7 support to operate efficiently without compromising privacy.

Inside, the two mirrored environments function independently. Bedrooms are acoustically separated and constructed with reinforced walls, durable finishes and split system heating and cooling. Each private ensuite is step-free with slip-resistant flooring, reinforced backing and clear circulation space to support independent or assisted use. Separate kitchen and living zones in each environment promote autonomy, reduce shared-living triggers and support long-term tenancy.

Built for durability and compliance, the home includes high-impact wall linings, reinforced sanitary areas, slip-resistant surfaces and vandal-resistant fixtures. Externally, the property offers secure fencing, accessible pathways, a manageable yard and single-storey access with double garage parking.

A purpose-built Robust SDA home in Armstrong Creek delivering genuine independence, clear zoning for SIL providers and two completely independent living environments on one title.

Interested in this property?
Here are your options

Ready to apply? Share your details with the provider

Need more detail? Ask the property provider a question

Register to favourite

Property Features

The building

Single storey

Access

Ramp access

Wide doorframes

Wide pathways

Environment

Air conditioning

Heating

Outside

Secure backyard

Undercover access from parking to property

Shared Living

Storage for personal equipment

Window

Built-in robe

Direct access to yard / courtyard / garden

Private/ensuite bathroom

Private living space

Private kitchen

Shared laundry

Pet friendly

Registered SDA: Yes SDA Category: Robust Stay Duration Permanent
Medium term

Provider Details

SDA Provider: Necessity Housing

What's nearby

Local terrain Bunjils Nest Playground (Warralily Estate) Warralily Boulevard, Armstrong Creek VIC 3217 Approx 5 minutes by car Accessible open play and green space.
Lake Connewarre Reserve Barwon Heads Road, Connewarre VIC 3227 Approx 12 minutes by car Nature reserve with walking tracks and quiet outlooks.
Transport Marshall Train Station Marshalltown Road, Marshall VIC 3216 Approx 10 minutes by car V/Line service to Melbourne Southern Cross Approx 1 hour 15 minutes travel time.
Geelong Train Station Railway Terrace, Geelong VIC 3220 Approx 20 minutes by car Direct Melbourne connections.
Shopping Armstrong Creek Town Centre 33 Central Boulevard, Armstrong Creek VIC 3217 Approx 4 minutes by car Approx 8 minutes by bike Includes Woolworths, pharmacy, cafes, GP services and specialty retail.
The Village Warralily Shopping Centre 770 Barwon Heads Road, Armstrong Creek VIC 3217 Approx 6 minutes by car Includes Coles, medical centre, allied health, takeaway and convenience services.
Waurn Ponds Shopping Centre 173–199 Pioneer Road, Waurn Ponds VIC 3216 Approx 10 minutes by car Major centre with Kmart, Coles, Aldi, Reading Cinemas, medical and specialty stores.
Other Armstrong Creek Medical Centre 33 Central Boulevard, Armstrong Creek VIC 3217 Approx 4 minutes by car Bulk billing GP and allied health services.
Waurn Ponds Medical Centre Waurn Ponds Shopping Centre Approx 10 minutes by car GP and specialist access.
University Hospital Geelong 272–322 Ryrie Street, Geelong VIC 3220 Approx 18–20 minutes by car Major regional hospital servicing the Geelong region.

Area Map

Interested in this property?
Here are your options

Ready to apply? Share your details with the provider

Need more detail? Ask the property provider a question

Register to favourite