Skip to content

Content

1 SDA + OOA + Guest Room, in Torquay

Torquay QLD 4655

3 bed

2 bath

2 parking
spaces

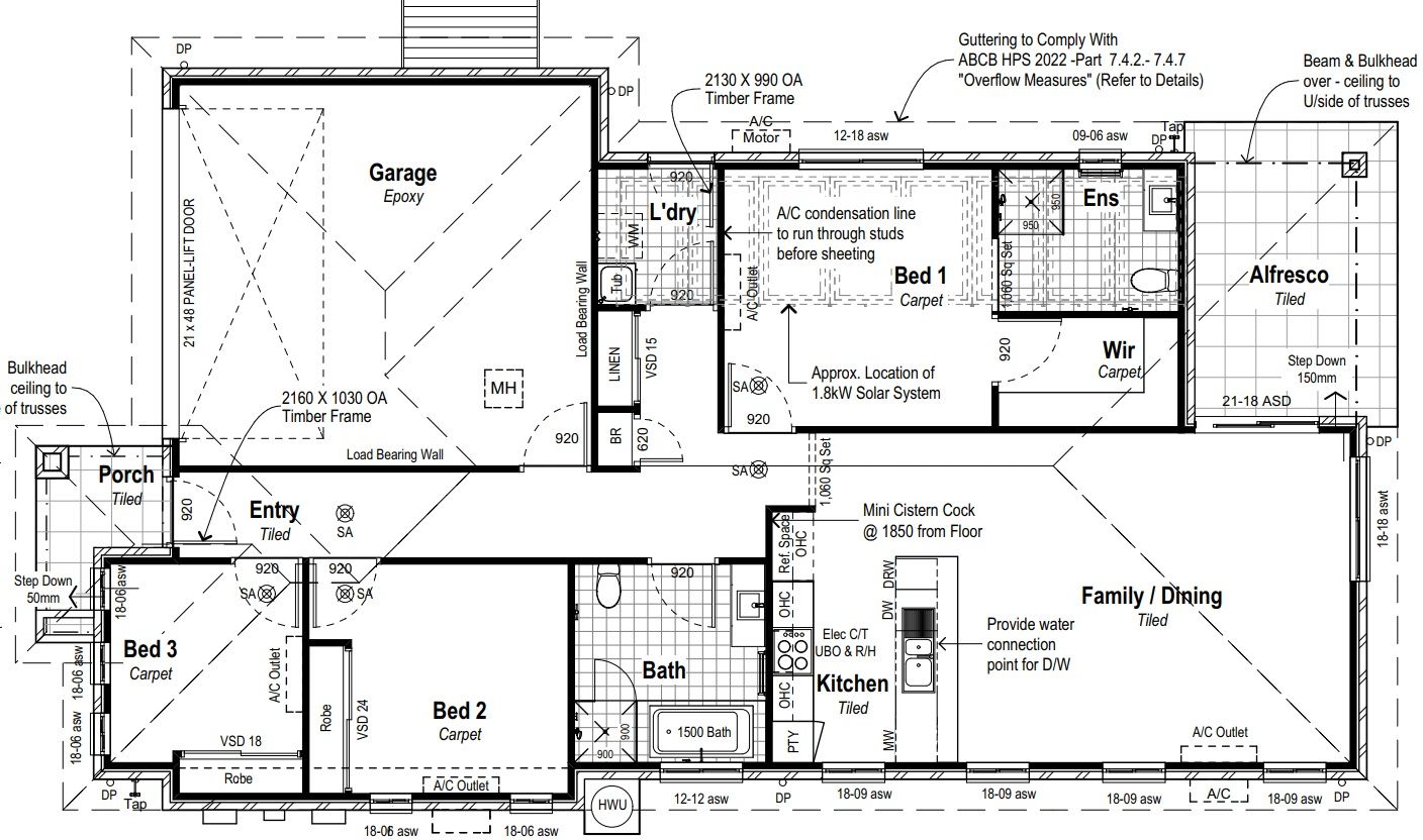
This near new lowset 3 bedroom home is designed for one Improved Liveability participant and comes with a separate guest bedroom for a family member of friend. Fully air conditioned, with wheelchair accessible to all internal and external areas.

* 1 SDA bedrooms, with ensuite and SDA accessibility options, and split system air conditioning

* OOA bedroom for onsite overnight support

* Separate guest bedroom

* Spacious open plan living

* Double lock up garage

Horizon SDA is here to help you obtain Specialist Disability Accommodation. Our houses are light and airy; open plan and very spacious. We are SDA Developers and a registered SDA Provider who specialise in High Physical Support homes. All our SDA houses are designed to the highest specifications and physical support SDA certification criteria and are totally independently 3rd party approved.

Interested in this property?
Here are your options

Ready to apply? Share your details with the provider

Need more detail? Ask the property provider a question

Register to favourite

Property Features

The building

Single storey

Access

Wide doorframes

Environment

Air conditioning

Outside

Secure backyard

Outdoor living/entertainment area

Undercover access from parking to property

Shared Living

Storage for personal equipment

Window

Built-in robe

Private/ensuite bathroom

Shared living space

Shared kitchen

Shared laundry

Pet friendly

Registered SDA: Yes SDA Category: Improved Liveability Stay Duration Permanent
Medium term
Short term

Area Map

Interested in this property?
Here are your options

Ready to apply? Share your details with the provider

Need more detail? Ask the property provider a question

Register to favourite