Content

West Ryde – Shared 5-bedroom all male home
West Ryde NSW 2114
5 bed
2 bath
2 parking
spaces
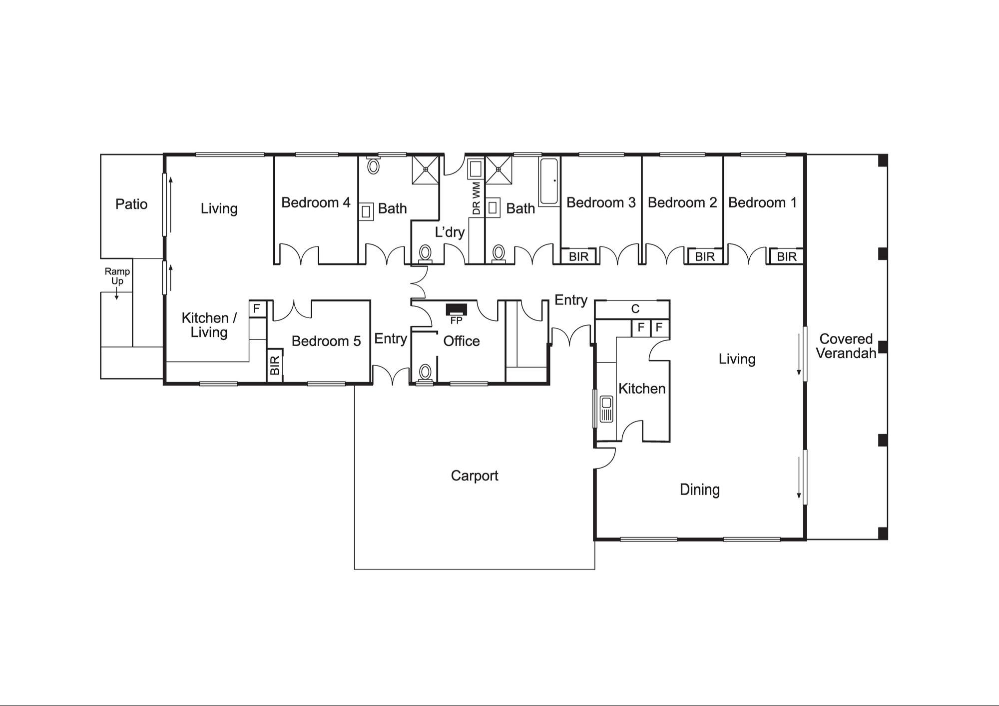
Nestled in Sydney’s vibrant Northern suburbs, this spacious, wheelchair-accessible single-level home offers the perfect balance of urban convenience and leafy serenity. With five bedrooms thoughtfully arranged across two living zones, the house features open-plan living and dining areas, two kitchens, and two accessible bathrooms, including one with an Arjo bath for ultimate relaxation.
Outdoors, residents can enjoy a pet-friendly garden, an undercover patio, and a BBQ area—ideal for meals, entertaining, or enjoying hobbies in the fresh air. The home is equipped with a shared vehicle for local outings, adding an extra layer of convenience.
Perfectly positioned near West Ryde Marketplace, the property is close to local shops, cafes, and parks, including Meadowbank Park, which boasts walking paths and an accessible open-air gym. Ryde Hospital is just a 7-minute drive away, while Sydney Olympic Park is within easy reach, offering additional recreational opportunities.
With 24/7 support from Cerebral Palsy Alliance’s highly trained staff, this home provides a supportive and inclusive environment tailored to each resident’s needs, ensuring independence and care in a connected, welcoming community.
PROPERTY FEATURES
- 5 Bedrooms
- 2 Bathrooms, 1 with Arjo Bath
- 2 Kitchens
- 2 Living and Dining
- Air-conditioning
- Laundry
- Carport
- Undercover outdoor area with BBQ
- Level lawn with ramp access
- Pet Friendly
ACCESS
- Fully wheelchair accessible
- 24/7 support with staff awake overnight
- Shared vehicle with undercover access to house
- Secure front and back yard
- Footpath along street
ABOUT THE AVAILABLE ROOM
- Bedroom 5
- Close to front living and kitchen/dining
- Convenient access to front patio
- Built in wardrobe
- Aerial Port (TV)
(Images shown are indicative only)
YOUR HOUSE MATES
- Male
- Ages 51 - 65
VIEW ALL CPA VACANCIES: https://cerebralpalsy.org.au/services/accommodation/supported-independent-living/vacancies-overview/
Interested in this property?
Here are your options
Ready to apply? Share your details with the provider
Property Features
Single storey
Air conditioning
Heating
Secure backyard
Secure frontyard
Garden
Outdoor living/entertainment area
Undercover access from parking to property
Storage for personal equipment
Window
Built-in robe
Direct access to yard / courtyard / garden
Shared bathroom
Shared living space
Shared kitchen
Shared laundry
Provider Details
What's nearby
Victoria Road Bus Stop 850m
Interested in this property?
Here are your options
Ready to apply? Share your details with the provider
Area Map
Interested in this property?
Here are your options
Ready to apply? Share your details with the provider
West Ryde – Shared 5-bedroom all male home










