Skip to content

Content

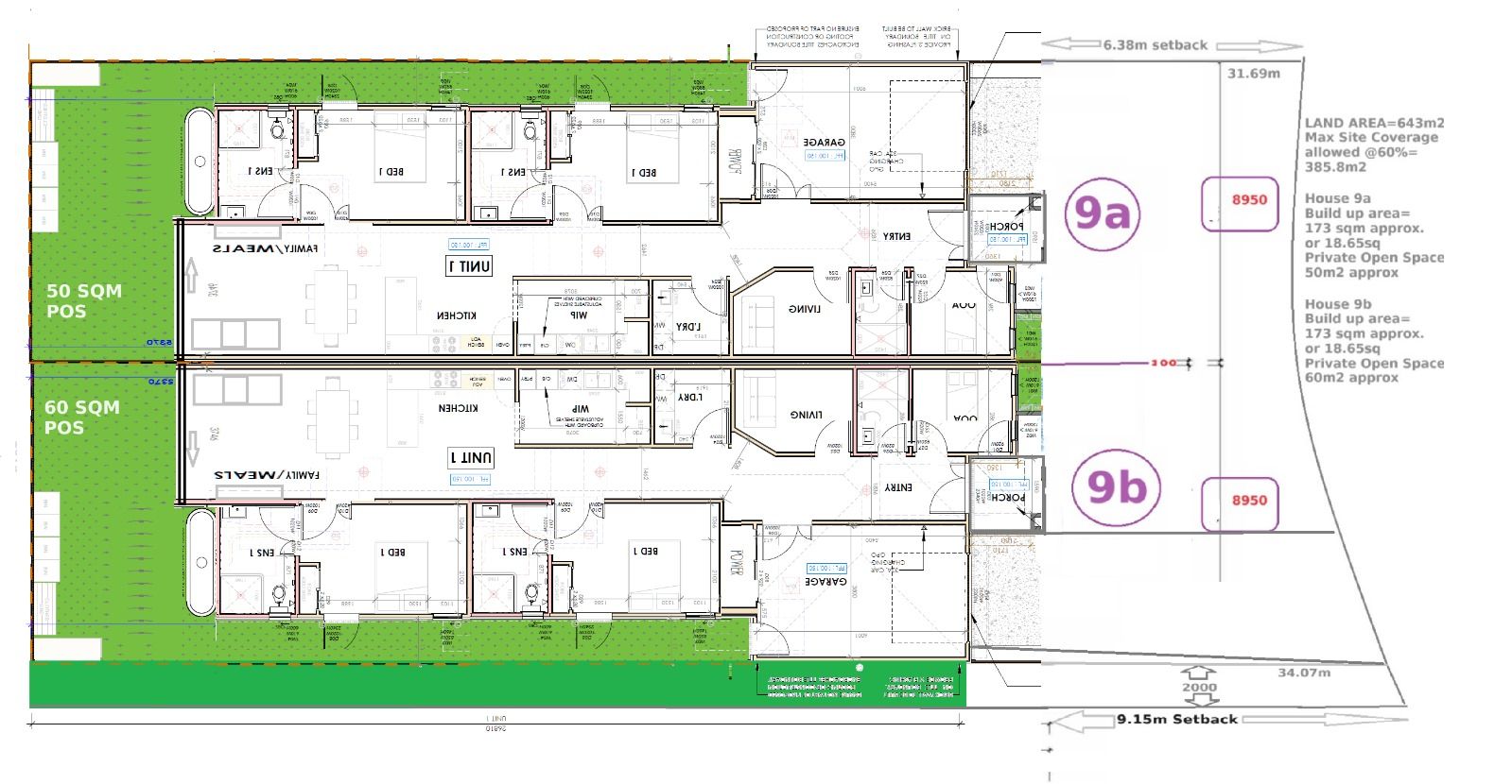
8 STAR-2 BED HPS/FA + OOA + 2 Living + 3 Toilets/ Showers Hampton Park, VIC, 3976

Hampton Park VIC 3976

3 bed

3 bath

1 parking
space

8 Star Energy Efficient 2 HPS with Ensuite Plus OOA

Some of the many features of this property include:

Separate OOA room with Ensuite for Carer

2 x spacious HPS / FULLY ACCESSABLE Living with ensuites

2 x Living Area

3 Toilets and Showers to cater for 2 participants, Carer and Guests / second carer.

All Care Housing homes feature:

Lifetime residency, so you never need to worry about moving again.

2.7m High Ceiling

Double Glazed windows

Extra Insulation between internal walls to ensure sound proofing.

Low maintenance Gardens

Sprinkler Systems for added safety.

1.5m wide internal and external accessway for easy fire exit

Alfresco outdoor living plus private courtyard with every room.

Larger Bedrooms, larger bathrooms

Separate Toilets and showers for Carer and Visitors.

Built-in robes with shelfs

1020mm+420mm extra wide double doors, Provision in bedrooms and en-suits ceilings hoist and adjustable benches for HPS

Designed for residents to age in place, so your home will remain suitable for you as you get older.

8.0 star energy efficiency rating. Great for keeping costs down and protecting the environment.

Close to shops, medical facilities, parks and transport.

Thicker impact resistant plaster board

10KW Solar System with 10KWH Battery power backup in case of blackout / power failure no or low energy Bills

3000L Rainwater Tank

Stepless Showers, entry and exits

Timber-look low maintenance Hybrid flooring

Energy Efficient Lighting and Appliances

Shaving Cabinets and Shower Niche for Convenient storage.

Individual Reverse cycle air conditioning for every room and area for providing comfort according to participants choice.

Provision for Assisted Technologies and Electronic Bidet System for hygienic cleaning and drying to provide greater independence.

BBQ and sensual garden with Water Features in the backyard

Electric Car and wheelchair Charging provision

Exposed Concrete driveways and pathways

Highly efficient house with Rendered Hebel exterior for modern contemporary look

Independent carer entry and exit accessway.

Accepts: High Physical Support or Fully Accessible. May consider Improved living participants in addition to HPS participants. We can also build to your desired specifications and locations.

Call now on 0490 049 023 to discuss.

Interested in this property?
Here are your options

Ready to apply? Share your details with the provider

Need more detail? Ask the property provider a question

Register to favourite

Property Features

The building

Single storey

Access

Ramp access

Ceiling hoist

Wide pathways

Environment

Air conditioning

Compatible to Environmental Control Units (ECU)

Heating

Outside

Secure backyard

Secure frontyard

Raised garden bed

Garden

Deck/verandah

Outdoor living/entertainment area

Undercover access from parking to property

Shared Living

Storage for personal equipment

Window

Built-in robe

Direct access to yard / courtyard / garden

Private/ensuite bathroom

Shared living space

Shared kitchen

Shared laundry

Registered SDA: Yes SDA Category: High Physical Support Stay Duration Permanent

Provider Details

SDA Provider: Care Central SIL Provider: Care Central

What's nearby

Transport Close
Shopping Close

Area Map

Interested in this property?
Here are your options

Ready to apply? Share your details with the provider

Need more detail? Ask the property provider a question

Register to favourite