Content
Modern Two Bedroom + OOA SDA in Peaceful Edmonton
Edmonton QLD 4869
3 bed
4 bath
2 parking
spaces
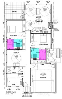
This thoughtfully designed Specialist Disability Accommodation (SDA) home in Edmonton offers high physical support, fully accessible, and improved liveability features, ensuring comfort, independence, and safety. With the whole home available, this home is perfect for individuals or familes looking for a welcoming and adaptable living space with the freedom to bring their own Supports.
Home Features:
✅ Two high physical support bedrooms, each with a private accessible ensuite and built-in storage.
✅ Spacious open-plan kitchen, dining, and living areas, creating a bright and welcoming environment.
✅ Step-free access, widened doorways, and smart design features for enhanced mobility and independence.
✅ Spacious outdoor alfresco area, offering fresh air and relaxation.
✅ Secure and quiet location in Edmonton, with convenient access to local amenities.
✅ Choice and control – bring your own SIL provider for personalized support.
At Everhomes, we provide SDA housing that prioritizes independence, security, and comfort, giving residents the freedom to live life on their own terms.
Find out if this home is the right fit for you- contact us for more details!
Interested in this property?
Here are your options
Ready to apply? Share your details with the provider
Property Features
Single storey
Ramp access
Wide doorframes
Wide pathways
Air conditioning
Heating
Secure backyard
Garden
Outdoor living/entertainment area
Undercover access from parking to property
Window
Built-in robe
Private/ensuite bathroom
Shared living space
Shared kitchen
Shared laundry
Pet friendly
Fully Accessible
High Physical Support
Medium term
Provider Details
What's nearby
6 Minutes to Edmonton Family Medical Clinic
20 Minutes to Cairns Hospital
Interested in this property?
Here are your options
Ready to apply? Share your details with the provider
Area Map
Interested in this property?
Here are your options
Ready to apply? Share your details with the provider
Modern Two Bedroom + OOA SDA in Peaceful Edmonton






