Epping HPS | IL | FA Category SDA - 2 Ensuites + OOA
Home
Care I Wish
Epping HPS | IL | FA Category SDA - 2 Ensuites + OOA
Epping HPS | IL | FA Category SDA - 2 Ensuites + OOA
Epping VIC 3076
3 bed
2 bath
1 parking space
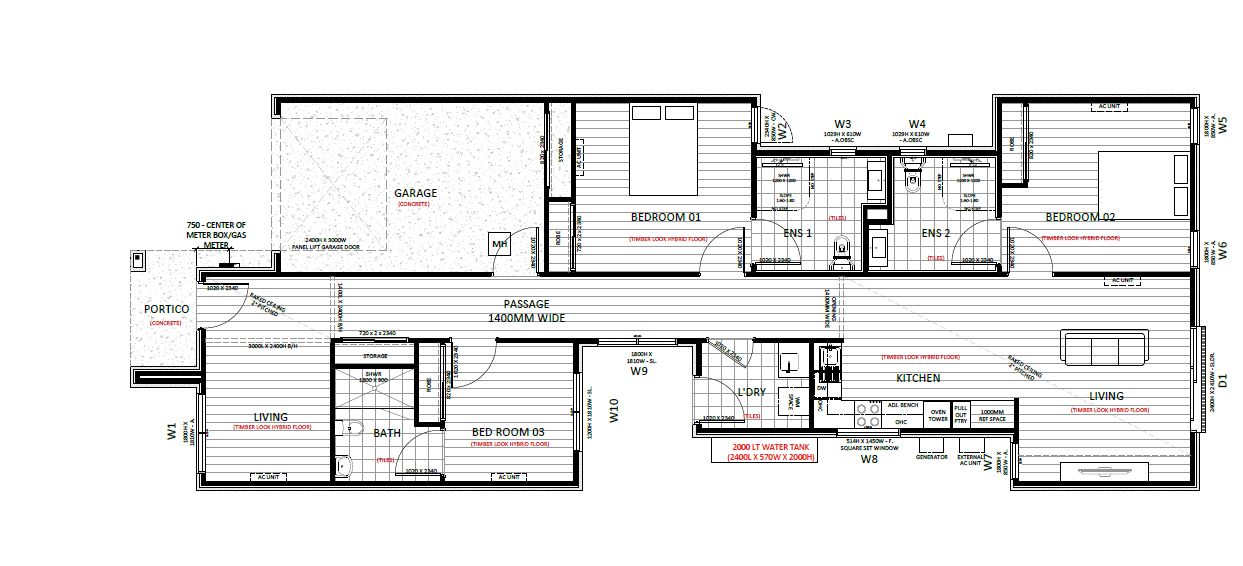
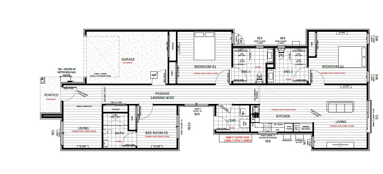
Welcome to our modern SDA home in Epping, a thriving and well-connected suburb offering the perfect balance of convenience and community. Designed for participants with High Physical Support (HPS), Improved Liveability (IL), and Fully Accessible (FA) needs, this home provides a safe, comfortable, and fully accessible environment. Featuring wide hallways, step-free access, assistive technology, and accessible bathrooms, it is built to promote independence and ease of daily living. Ideally located near public transport, shopping centres, healthcare services, and parks, this Epping SDA home combines lifestyle, accessibility, and personalised support, creating a welcoming and empowering place to call home.
Interested in this property? Here are your options
Ready to apply? Share your details with the provider
Need more detail? Ask the property provider a question
Local terrainLocal parks and reserves – Epping Gardens Reserve (~650 m), Epping North Reserve (~1.2 km), and Mill Park Lakes Park (~3.5 km), offering walking paths, outdoor recreation, and green spaces
TransportPublic transport and shopping precincts – Bus stops within ~250 m, Epping Train Station (~1.8 km)
ShoppingPacific Epping Shopping Centre (~2.2 km), providing supermarkets, retail, cafes, and essential services
OtherHealthcare services – Epping Medical Centre (~1 km) and a variety of local allied health and therapy providers
Interested in this property? Here are your options
Ready to apply? Share your details with the provider
Need more detail? Ask the property provider a question
Our match score indicates how closely 'matched' you are to this property. The longer the line; the better you are matched with the property with regards to your preferences and funding.
Our match score indicates how closely 'matched' this applicant is to your property. The longer the line; the better they are matched with regards to their preferences and funding.
31 matches since last Wednesday.
Login to find your Nest
Reset your password
Sign up for Nest in seconds
Why are you signing up?
Register to apply for:Epping HPS | IL | FA Category SDA - 2 Ensuites + OOA, Epping VIC 3076
When you click 'Register & Apply', your profile details will be shared with the accommodation provider. They'll assess how suited you are to the room and contact you to discuss your application.
Your application has been submitted.
The accommodation provider will be in touch to let you know the outcome of your application.