Skip to content

Content

Accessible Living with Comfort & Flexibility in Blakeview

Blakeview SA 5114

3 bed

3 bath

0 parking
space

Property Features

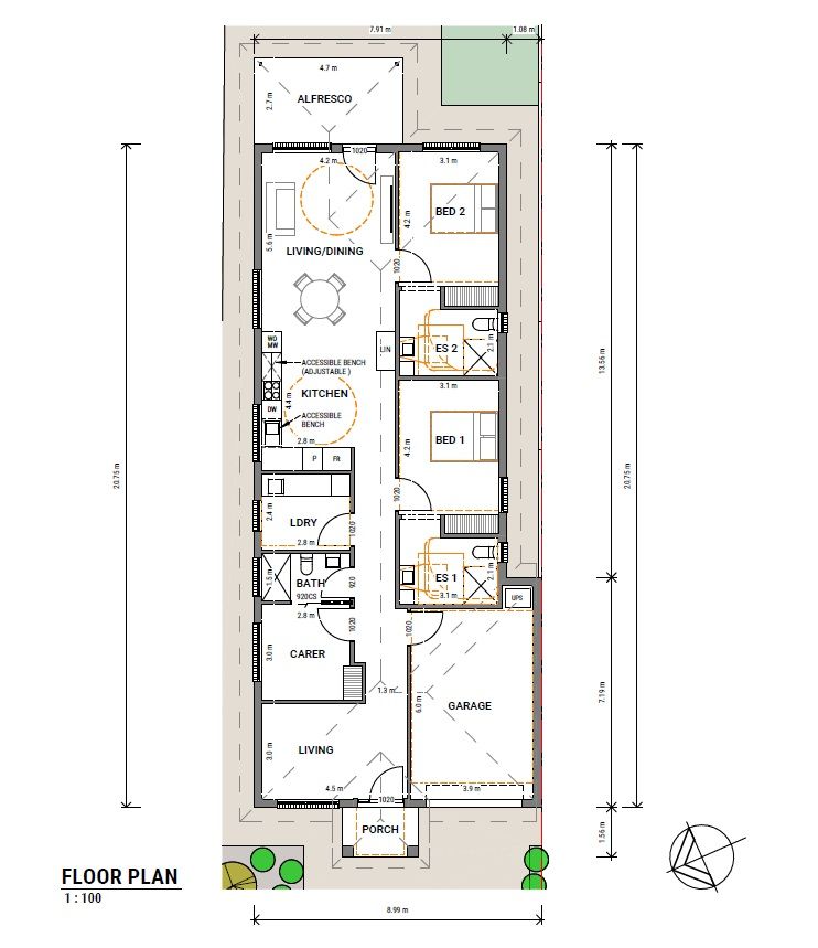
Open-plan alfresco kitchen and dining

Dishwasher and walk-in pantry

Adjustable kitchen bench height

Two private ensuites included

Extra living room or fourth bedroom

Secure single-car garage space

Backyard, side yard, and porch

Laundry with ample storage space

Ceiling hoist provisions in bedrooms

Domestic fire safety system

Intercom stations throughout home

UPS – uninterrupted power supply

Ducted air-conditioning throughout

Contact:Wendy de la RuwierePh: 0410 007 788

Roshiba Christina de la RuwierePh: 0422 322 550

E: info@theangelsdisability.com.auRLA: 300599/ 263916

Disclaimer: We have obtained all information in this document from sources we believe to be reliable, while every endeavour has been made to verify the correct details in this publication, however, we cannot guarantee its accuracy, and no warranty or representative is given or made as to the correctness of information supplied and neither the owners nor their agent can accept responsibility for errors or omissions. Angels Disability reserves the right to make alterations or corrections to the information and individuals are advised to carry out their own investigations. These photos are used for illustration purposes only.

Interested in this property?
Here are your options

Ready to apply? Share your details with the provider

Need more detail? Ask the property provider a question

Register to favourite

Property Features

The building

Single storey

Environment

Air conditioning

Heating

Outside

Garden

Outdoor living/entertainment area

Shared Living

Private/ensuite bathroom

Shared living space

Shared kitchen

Shared laundry

Registered SDA: Yes SDA Category: High Physical Support Stay Duration Permanent
Medium term

Provider Details

SDA Provider: The Angels Disability Support Services

Application Criteria

Rent cost per week: $253.28

What's nearby

Transport Main Terrace near Blakeview Primary School
Shopping Blakeview Shopping Centre
Other Lyell McEwin Hospital

Area Map

Interested in this property?
Here are your options

Ready to apply? Share your details with the provider

Need more detail? Ask the property provider a question

Register to favourite