Skip to content

Content

New Build for 1 with SIL, ILO or Core Funding (no housemates!)

Mont Albert VIC 3127

2 bed

1 bath

0 parking
space

Step Into Something New, this unit is freshly built and looking for someone to move in!

πŸ›ŒSupport: 1:1 with overnight support

πŸ”Ž Vacancy: 1 spot for a private home within a supportive community

🏑 Property: Standalone Bungalow on a lot with 3 other SIL houses. Supports social inclusion or you can have your privacy – the option is up to you.

β™Ώ Accessibility: Accessible ramp entrance

βœ… Preferences – no preference for age or gender. This is a great opportunity for someone with SIL, ILO or Core Funding to live independently with support.

🚊 Amazing location: Conveniently located near essential amenities, parks and public transport in highly sort after Mont Albert area.

🚌 With Alkira's fleet of buses for transport to day services and weekend outings.

πŸ’¬ Enquire we respond in 1 business day, don’t wait around for responses. We are taking applicants now for a late July move in.

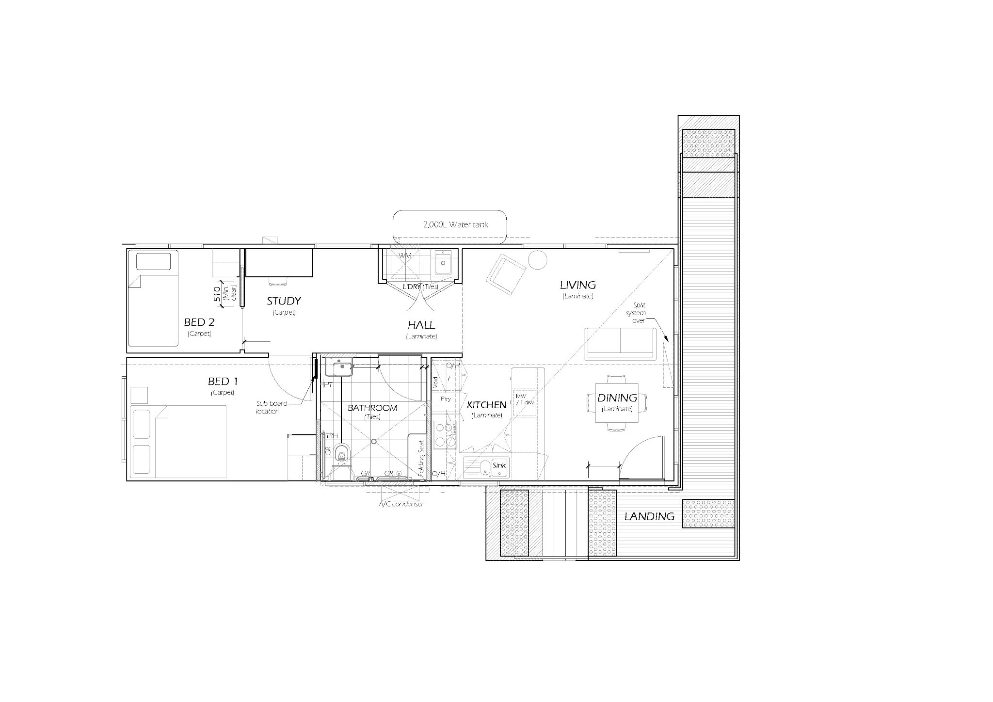
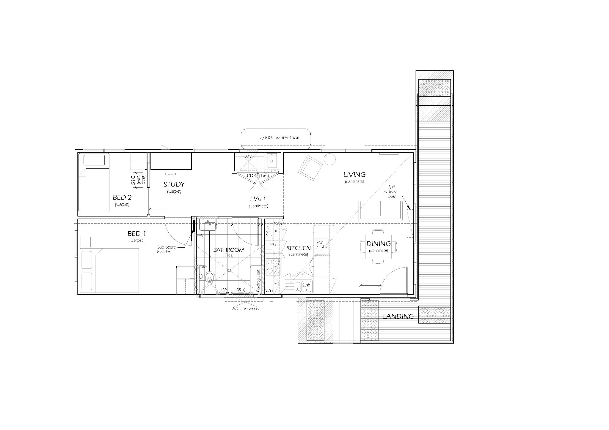
*Disclaimer: since we are currently building we do not have photos of the property. The image supplied is for illustration purposes only and does not show the decking with an accessible ramp that will be available, which you can see on the building floor plans.

Who is Alkira Disability Services?

Alkira has been supporting people with intellectual disabilities and their families for over 70 years. We support adults with intellectual disabilities through their life journey and offer a wide range of community and home support services.

We are people focused and understand that housemate compatibility matters. We use profiles to match potential housemates based on interests, lifestyle, and compatibility.

We create supportive environments with experienced staff with a focus on empowering people to become more independent. Residents receive help with daily living tasks such as meal preparation, shopping, household chores, and personal care.

We partner with families and participants, we work together to ensure everyone is satisfied.

Interested in this property?
Here are your options

Ready to apply? Share your details with the provider

Need more detail? Ask the property provider a question

Register to favourite

Property Features

The building

Single storey

Access

Stair access

Ramp access

Environment

Air conditioning

Heating

Shared Living

Window

Private/ensuite bathroom

Private living space

Private kitchen

Private laundry

Registered SDA: No Stay Duration Permanent

Provider Details

SIL Provider: Alkira Disability Services

What's nearby

Local terrain Kingsley Gardens 500m (7min walk)
Transport Box Hill Station 850m (12min walk)
Shopping Box Hill Central Shopping Centre 1km (15min walk)
Other Box Hill Family Clinic 300m (5min walk)
Mont Albert Medical Centre (3min drive)
Box Hill Hospital 800m (2min drive)

Area Map

Interested in this property?
Here are your options

Ready to apply? Share your details with the provider

Need more detail? Ask the property provider a question

Register to favourite