Skip to content

Content

Award Winning HPS Apartments in Caboolture

Caboolture QLD 4510

2 bed

2 bath

1 parking
space

Award winning 4 x 2-bedroom modern and fully accessible High Physical Support (HPS) apartments, all equipped with smart, automated technology to enhance comfort, safety, and independence. You’ll enjoy thoughtfully designed spaces that support your lifestyle and offer an exceptional quality of life.

This property has been named Specialised Housing of The Year at the 2025 Queensland Housing Awards.

Property Features

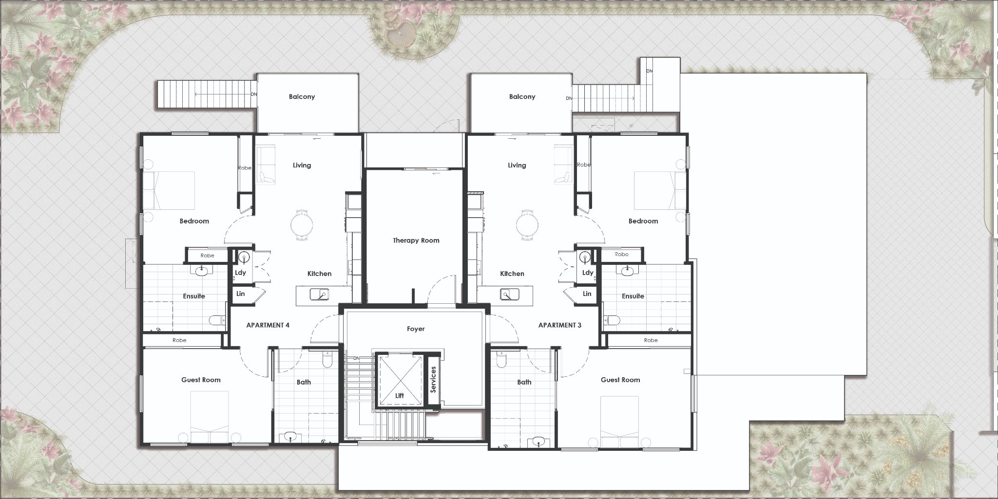
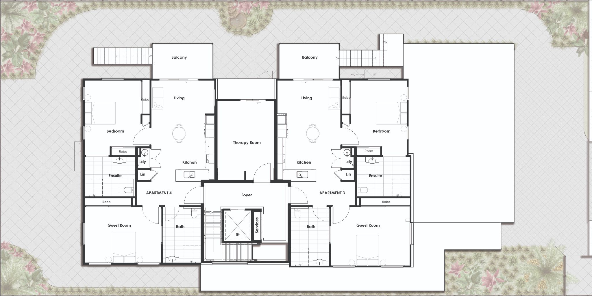
• Double storey building with four 2-bedroom HPS apartments

• Architecturally designed formal entry with Hampton's-style detail

• Accessible lift

• One triple and additional single garage

• Onsite Overnight Assistance (OOA) accommodation

• Therapy Room

• Fully accessible indoor, outdoor, and common areas

Outdoor & Shared Spaces

• Landscaped gardens with accessible pathways

• Outdoor alfresco and entertaining area with accessible BBQ

Safety & Compliance

• Fully compliant with NDIS SDA design standards (HPS)

• AS 1670-compliant fire detection, sprinklers and alarm system

• AS 2293 emergency lighting and exit signage

Technology & Assistive Features

• Voice-activated assistive technology

• Smart lighting, entry, and climate control systems

• 24/7 facility management and monitored security

• Automatic gated entry

Outstanding design highlights in each apartment

• Two spacious bedrooms with built-ins and quality Australian made blinds

• Two fully wheelchair accessible bathrooms with premium finishes and modern tiling

• Spacious open-plan kitchen and living area

• Premium Black Label Italian kitchen appliances

• Automated height-adjustable benchtop

Interested in this property?
Here are your options

Ready to apply? Share your details with the provider

Need more detail? Ask the property provider a question

Register to favourite

Property Features

The building

Two storey

Access

Lift access

Stair access

Ramp access

Automatic doors

Ceiling hoist

Wide doorframes

Wide pathways

Environment

Air conditioning

Compatible to Environmental Control Units (ECU)

Heating

Outside

Secure backyard

Secure frontyard

Garden

Deck/verandah

Outdoor living/entertainment area

Undercover access from parking to property

Shared Living

Window

Built-in robe

Direct access to yard / courtyard / garden

Private/ensuite bathroom

Shared living space

Shared kitchen

Shared laundry

Pet friendly

Registered SDA: Yes SDA Category: High Physical Support Stay Duration Permanent
Medium term

Provider Details

What's nearby

Shopping 10 min walk
Other Caboolture Hospital 5 min walk

Area Map

Interested in this property?
Here are your options

Ready to apply? Share your details with the provider

Need more detail? Ask the property provider a question

Register to favourite