Content

Brand new HPS SDA in prime location close to shops and transport in Truganina
Truganina VIC 3029
3 bed
4 bath
2 parking
spaces
✨ Stunning SDA Property in Central Truganina
Designed to HPS (High Physical Support) standards, this property is suitable for HPS, FA, and IL participants.
📍 Prime Location
Just a 5-minute walk to Truganina Central Shopping Centre and Truganina Community Centre
Only a 2-minute walk to McDonald's
Convenient 5-minute drive to Tarneit Station for easy access to public transport
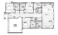
🏡 Property Features
3 spacious rooms with ensuites and provision for hoist installation
Ample storage throughout, including charging space for wheelchairs.
Dedicated staff room for 24/7 care support
Uninterrupted power supply for emergency medical equipment
Broad, accessible hallways with nonslip flooring
Large living area and study nook for relaxation and socializing
Modern open-plan kitchen with adjustable benchtop
Common areas fully furnished with new furniture and the latest electrical appliances
Ramp access at all entry and exit points for ease of mobility.
🌟 Additional Highlight
Corner lot property with ample natural lighting throughout
Interested in this property?
Here are your options
Ready to apply? Share your details with the provider
Property Features
Single storey
Ramp access
Ceiling hoist
Wide doorframes
Wide pathways
Air conditioning
Heating
Secure backyard
Garden
Undercover access from parking to property
Storage for personal equipment
Window
Built-in robe
Private/ensuite bathroom
Shared living space
Shared kitchen
Shared laundry
Pet friendly
Fully Accessible
High Physical Support
Medium term
Provider Details
What's nearby
McDonald's Truganina - 2 mins from home
Interested in this property?
Here are your options
Ready to apply? Share your details with the provider
Area Map
Interested in this property?
Here are your options
Ready to apply? Share your details with the provider
Brand new HPS SDA in prime location close to shops and transport in Truganina















