Content

Pair of spacious & modern 3bed/3bath High Physical Support House in Knoxfield!
Knoxfield VIC 3180
3 bed
3 bath
2 parking
spaces
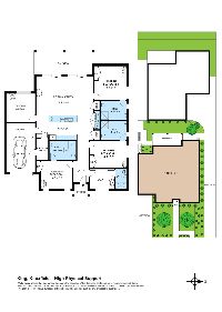
Welcome home to this newly constructed, modern 3-bedroom High Physical Support home conveniently located in Knoxfield. Designed with meticulous attention to detail, each bedroom is complemented by its own ensuite, ensuring privacy and ease for individuals requiring high physical support.
Featuring an expansive open-plan area that combines the living, dining, and kitchen spaces, this home extends into a private alfresco area—ideal for unwinding outdoors. Additionally, a separate living space or TV room offers a tranquil escape for entertainment or solitude, highlighting the home's dedication to balancing shared experiences with individual privacy.
Perfectly positioned near local amenities, including Knox Shopping Centre, Lakewood Nature Reserve, and various public transport options, this home is crafted to enhance the lifestyle of each resident, promoting independence and a high quality of life.
This brand-new home has been carefully designed by a team who are deeply passionate about providing quality places to live. At InPlace Living, our priority is building wellbeing - creating homes for people to create memories.
Please note that in order to be eligible for this SDA you must have SDA funding in your NDIS plan.
In respect of privacy for participants please also note that the map view below shows approximate location only.
Interested in this property?
Here are your options
Ready to apply? Share your details with the provider
Property Features
Single storey
Ramp access
Ceiling hoist
Wide doorframes
Wide pathways
Air conditioning
Compatible to Environmental Control Units (ECU)
Heating
Secure backyard
Secure frontyard
Garden
Deck/verandah
Outdoor living/entertainment area
Undercover access from parking to property
Storage for personal equipment
Window
Built-in robe
Direct access to yard / courtyard / garden
Private/ensuite bathroom
Private living space
Shared living space
Shared kitchen
Shared laundry
Pet friendly
Medium term
Provider Details
What's nearby
Interested in this property?
Here are your options
Ready to apply? Share your details with the provider
Area Map
Interested in this property?
Here are your options
Ready to apply? Share your details with the provider
Pair of spacious & modern 3bed/3bath High Physical Support House in Knoxfield!





































