Skip to content

Content

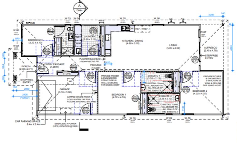
Modern and Accessible HPS Home in Invermay

Invermay TAS 7248

3 bed

3 bath

1 parking
space

Move in Ready HPS House in Invermay

This modern SDA home in Invermay, Tasmania is move in ready and designed for comfortable, accessible living.

Available to participants with High Physical Support, Fully Accessible or Improved Liveability funding.

This home features two spacious participant bedrooms with private ensuites, plus a dedicated Onsite Overnight Assistance room.

Bring your own supports and submit your inquiry today!

Interested in this property?
Here are your options

Ready to apply? Share your details with the provider

Need more detail? Ask the property provider a question

Register to favourite

Property Features

The building
Single storey
Access
Wide doorframes Wide pathways
Environment
Air conditioning Heating
Outside
Secure backyard Outdoor living/entertainment area Undercover access from parking to property
Shared Living
Storage for personal equipment Window Built-in robe Direct access to yard / courtyard / garden Private/ensuite bathroom Shared living space Shared kitchen Shared laundry
Registered SDA: Yes
SDA Category: High Physical Support
Stay Duration Permanent

What's nearby

Transport 2 minute walk to nearest bus stop
Shopping 7 minute drive to Launceston Central
Other 9 minute drive to Launceston General Hospital
20 minute drive to Launceston Airport

Area Map

Interested in this property?
Here are your options

Ready to apply? Share your details with the provider

Need more detail? Ask the property provider a question

Register to favourite