Skip to content

Content

Contemporary High-Support SDA Home in Mount Barker

Mount Barker SA 5251

3 bed

3 bath

2 parking
spaces

Welcome to this beautifully designed Specialist Disability Accommodation (SDA) home in Mount Barker — a modern, fully accessible residence created to empower independent living in the heart of the Adelaide Hills. Built to the High Physical Support SDA Design Standard, this home combines thoughtful design, assistive technology readiness, and premium finishes for a safe and comfortable lifestyle.

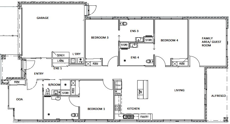
Each of the three spacious bedrooms includes its own private ensuite, designed with accessibility in mind — featuring step-free showers, full-height tiling, and reinforced ceilings for hoist installation if required. The open-plan kitchen, dining, and living areas are designed to encourage social connection while supporting easy movement throughout. Accessible benchtops, pull-out pantries, and high-quality appliances create a kitchen that’s both practical and stylish.

The home is equipped with advanced assistive-technology features, including automatic doors, lighting, blinds, and adjustable electric benchtops — allowing each resident to tailor their living environment to their individual needs. A dedicated Onsite Overnight Assistance (OOA) room ensures professional support is always available, providing peace of mind for residents and their families.

Set in the peaceful Mount Barker community, this SDA home offers the perfect balance between independence and support — designed for those who value comfort, accessibility, and choice in everyday living.

Claro — awarded the Most Outstanding Disability Support Provider at the 2025 Enablement Awards — has partnered with SDA provider Vera Living as the onsite care partner. Claro is a registered NDIS provider offering Supported Independent Living (SIL) and Community Participation (CP) supports, helping residents live confidently, safely, and on their own terms.

To be eligible for Specialist Disability Accommodation, you’ll need to be an NDIS participant and have approved SDA funding in your plan. If you’re unsure, speak with your NDIS coordinator or contact Claro via intake@claro.com.au

or the form on this page.

Interested in this property?
Here are your options

Ready to apply? Share your details with the provider

Need more detail? Ask the property provider a question

Register to favourite

Property Features

The building

Single storey

Access

Ramp access

Ceiling hoist

Wide doorframes

Wide pathways

Environment

Air conditioning

Heating

Outside

Secure backyard

Outdoor living/entertainment area

Undercover access from parking to property

Shared Living

Storage for personal equipment

Built-in robe

Direct access to yard / courtyard / garden

Private/ensuite bathroom

Shared living space

Shared kitchen

Shared laundry

Registered SDA: Yes SDA Category: Fully Accessible
High Physical Support
Stay Duration Permanent

Provider Details

SDA Provider: Vera Living SIL Provider: Claro Disability Services

What's nearby

Local terrain 2km to the nearest park at Keith Stephenson Park, Mount Barker SA, Australia.
Transport 22km to the nearest train station at Belair SA, Australia.
757m to the nearest bus stop at Stop 85 Hurling Dr - South side, Mount Barker SA, Australia.
Shopping 2km to the nearest shopping centre at Mount Barker Village Shopping Centre, Victoria Crescent, Mount Barker SA, Australia.
Other 2km to the nearest hospital at Mount Barker District Soldiers’ Memorial Hospital, Wellington Road, Mount Barker SA, Australia.
2km to the nearest medical practice (GP) at Mount Barker South Medical Centre, Wellington Road, Mount Barker SA, Australia.

Area Map

Interested in this property?
Here are your options

Ready to apply? Share your details with the provider

Need more detail? Ask the property provider a question

Register to favourite