Skip to content

Content

Your new Robust home in Pakenham, with private living spaces!

Pakenham VIC 3810

2 bed

4 bath

2 parking
spaces

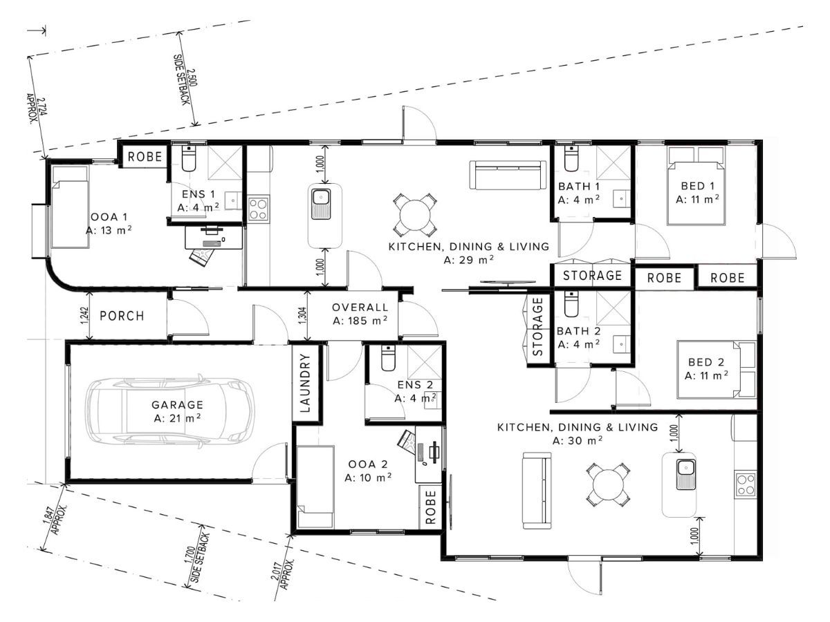
Available from August 2026, this is a rare opportunity to secure the remaining ‘half’ of this uniquely designed two resident home that’s perfectly suited for Robust participants seeking to live alone. Located close to Arena Shopping Centre, medical facilities, parks and transport, this two resident home is designed to provide each tenant a single living experience, including their own kitchen and living room.

Melbourne is an easy commute, with the nearby Princes Hwy, Monash Fwy, and public transport within one kilometre. A train ride on the Metro line means a guaranteed seat, with Cardinia Road Station being just the second stop!

Features

- Onsite Overnight Assistance (OOA)

- separate kitchens and living rooms

- ensuites

- reverse-cycle air conditioning

- strong walls, doors, glass & soundproofing

- energy efficient

Interested in this property?
Here are your options

Ready to apply? Share your details with the provider

Need more detail? Ask the property provider a question

Register to favourite

Property Features

The building
Single storey
Access
Wide doorframes Wide pathways
Environment
Air conditioning Heating
Outside
Secure backyard Garden Deck/verandah Outdoor living/entertainment area Undercover access from parking to property
Shared Living
Storage for personal equipment Window Built-in robe Direct access to yard / courtyard / garden Private/ensuite bathroom Private living space Private kitchen Shared laundry
Registered SDA: Yes
SDA Category: Improved Liveability
Robust
Stay Duration Permanent

Provider Details

SDA Provider: DEC Housing SIL Provider: Bright Access

Area Map

Interested in this property?
Here are your options

Ready to apply? Share your details with the provider

Need more detail? Ask the property provider a question

Register to favourite