Skip to content

Content

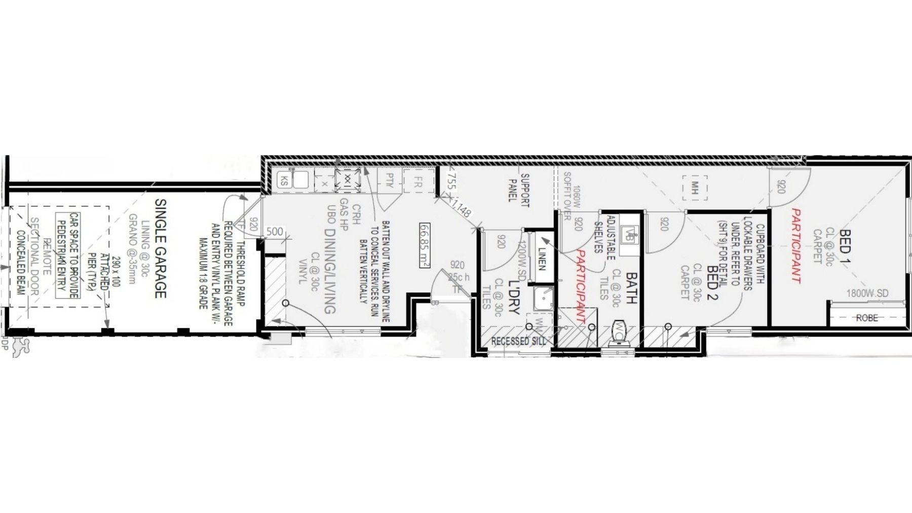
SDA Robust 1 Bedroom Villa plus OOA Baldivis, WA | 257

Baldivis WA 6171

1 bed

1 bath

1 parking
space

Discover the perfect Robust SDA home in Baldivas. Designed for independence and safety, it provides a comfortable environment tailored for Robust participants. The accessible, peaceful neighborhood makes everyday life simple and stress-free.

Property Features:

πŸ”‘ Unit 2

πŸ›οΈ 1 Bedroom β€” Comfortable and private sleeping space.

πŸ› 1 Bathroom β€” Stylish and functional for convenience.

πŸ›ŽοΈOOA β€” Support available 24/7 for peace of mind.

πŸš— 1-Car Garage β€” Dedicated covered parking spot.

🌟 Additional Features

🌑️ Heating & Cooling System β€” Stay comfortable all year round.

🐾 Pets Allowed β€” Bring your furry friends along!

🌿 Rear Yard β€” Enjoy fresh air and outdoor living.

Make the smart choiceβ€”this is a home where Robust participants can truly thrive 🏑✨. Secure it today and enjoy the independence, comfort, and confidence you deserve !

Interested in this property?
Here are your options

Ready to apply? Share your details with the provider

Need more detail? Ask the property provider a question

Register to favourite

Property Features

The building

Single storey

Environment

Air conditioning

Heating

Outside

Outdoor living/entertainment area

Shared Living

Built-in robe

Private/ensuite bathroom

Private living space

Private kitchen

Private laundry

Pet friendly

Registered SDA: Yes SDA Category: Robust Stay Duration Permanent

What's nearby

Transport 8km from train station
450m from bus stop
Shopping 2km from shopping mall
Other 13.1km from hospital
300m from Park
2km from medical centre

Area Map

Interested in this property?
Here are your options

Ready to apply? Share your details with the provider

Need more detail? Ask the property provider a question

Register to favourite