Skip to content

Content

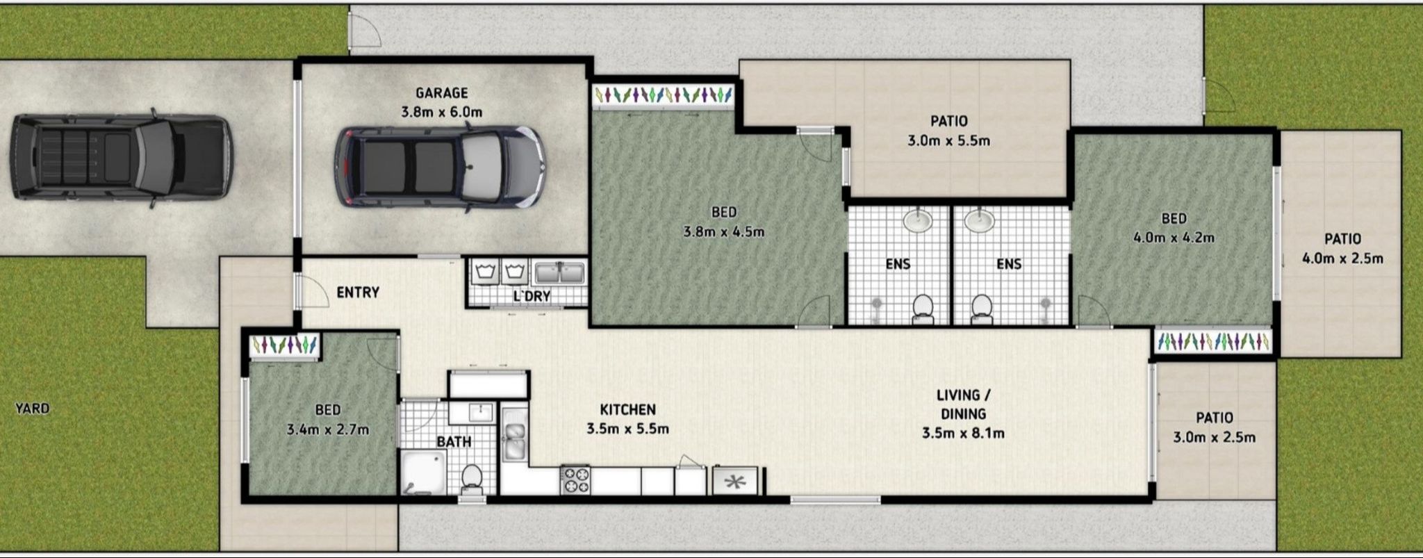
2 SDA (High Physical Support) Rooms + OOA, in Brassall

Brassall QLD 4305

3 bed

3 bath

2 parking
spaces

This contemporary residence is a comfortable SDA home that can house up to two SDA Participants at the High Physical Support level.

Two ensuite bathrooms adorn the first 2 bedrooms, and there is a separate bathroom. There is also an OOA room for a support worker or family member.

Fully air conditioned, wheelchair access to all internal and external areas, and secure with a lock up double garage.

* 2 SDA (High Physical Support) bedrooms, with ensuites and SDA accessibility options, + split system air conditioning.

* OOA bedroom for onsite overnight support - Spacious open plan living

* Modern Kitchen with height adjustable bench, dishwasher, Caesarstone benchtops, + more

* Laundry, with washer and dryer provided.

Horizon SDA is here to help you obtain Specialist Disability Accommodation. Our houses are light and airy; open plan and very spacious.

We are SDA Developers and a registered SDA Provider who specialise in High Physical Support homes. All our SDA houses are designed to the highest specifications and physical support SDA certification criteria and are totally independently 3rd party approved.

Interested in this property?
Here are your options

Ready to apply? Share your details with the provider

Need more detail? Ask the property provider a question

Register to favourite

Property Features

The building

Single storey

Access

Wide doorframes

Wide pathways

Environment

Air conditioning

Outside

Secure backyard

Outdoor living/entertainment area

Shared Living

Storage for personal equipment

Window

Built-in robe

Private/ensuite bathroom

Shared living space

Shared kitchen

Shared laundry

Pet friendly

Registered SDA: Yes SDA Category: Improved Liveability
Fully Accessible
High Physical Support
Stay Duration Permanent
Medium term
Short term

Area Map

Interested in this property?
Here are your options

Ready to apply? Share your details with the provider

Need more detail? Ask the property provider a question

Register to favourite