Content
Enjoy a relaxing lifestyle in a beautiful seaside suburb, Warilla
Warilla NSW 2528
2 bed
1 bath
This inviting property for people with mental health or disability support is located in the vibrant suburb of Warilla. Experience the beauty of coastal living with stunning beaches just a stone's throw away, while enjoying the convenience of local amenities, including the popular Warilla Grove Shopping Centre and Warilla Beach within walking distance.
Property Features
Heating and cooling for year-round comfort;
Built-in wardrobes providing ample storage;
Broadband internet is available for your connectivity needs.
Solar panels to enhance energy efficiency
Interested in this property?
Here are your options
Ready to apply? Share your details with the provider
Property Features
Single storey
Stair access
Air conditioning
Heating
Outdoor living/entertainment area
Window
Built-in robe
Direct access to yard / courtyard / garden
Private/ensuite bathroom
Private living space
Private kitchen
Private laundry
Provider Details
Application Criteria
Neighbours
This property is suitable for one resident, with the potential for a friendly and social atmosphere. You will have the opportunity to connect with neighbours who enjoy spending time together, whether it's socialising or enjoying quieter moments.
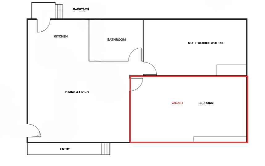
This property features a one-bedroom villa with an additional room that serves as a staff office or bedroom.
What's nearby
Interested in this property?
Here are your options
Ready to apply? Share your details with the provider
Area Map
Interested in this property?
Here are your options
Ready to apply? Share your details with the provider
Enjoy a relaxing lifestyle in a beautiful seaside suburb, Warilla






