Skip to content

Content

3+OOA HPS SDA Home in Wollert with Multi-Purpose Breakout Room

Wollert VIC 3750

4 bed

4 bath

2 parking
spaces

Located in a quiet, low-traffic and well-planned community, this home is ideal for residents who benefit from calm surroundings, predictable routines, and a low-stimulation lifestyle. Wollert offers excellent connectivity, with essential amenities such as shopping centres, medical services, community facilities, and public transport all easily accessible by car, supporting both residents and support staff in daily living.

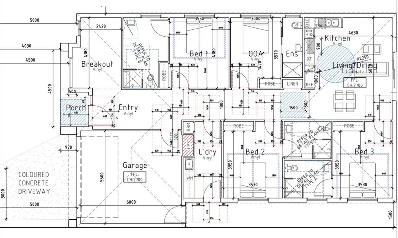
The home features a spacious and functional layout with generous natural light throughout. A dedicated breakout room provides valuable additional space that can be used as a multi-purpose activity room, quiet retreat, therapy space, or engagement area, supporting participants’ individual needs and daily routines. Every aspect of the home has been carefully designed to meet HPS standards, ensuring comfort, safety, and ease of support delivery.

πŸ”‘ Key Features

β€’ Purpose-built 3+OOA HPS SDA home

β€’ Three spacious participant bedrooms designed for high physical support needs

β€’ Dedicated breakout room suitable for activities, therapy, or quiet retreat

β€’ Accessible, open-plan living with excellent natural light

β€’ Thoughtfully designed layout supporting efficient care and mobility

β€’ Separate OOA bedroom for on-site support

β€’ Secure, low-maintenance outdoor area

β€’ Located in a quiet, low-traffic, sensory-friendly neighbourhood

β€’ Easy access to essential amenities within a short drive

🌿 Nature & Community

β€’ Wollert Community Centre – 4 min drive

β€’ Yan Yean Reservoir Park (Parks Victoria) – 12 min drive

πŸ› Shopping & Lifestyle

β€’ Aurora Village – 10 min drive

β€’ Woolworths Mernda Village – 10 min drive

β€’ Epping North Shopping Centre – 10 min drive

β€’ Mernda Village Shopping Centre – 10 min drive

πŸ₯ Healthcare Services Nearby

β€’ Keep In Motion Physiotherapy, Wollert/Mernda/Epping – 8 min drive

β€’ Mernda Regent Street Medical – 8 min drive

β€’ Aurora Village Medical Center – 10 min drive

β€’ Mernda Community Hospital – 12 min drive

πŸš‰ Public Transport Access

β€’ Epping Rd / Pine Park Dr Route #356 – 6 min drive

β€’ Mernda Railway Station – 11 min drive

πŸ“© Enquire Now!

This 2+OOA Robust SDA home in Charlemont offers calm, predictable living, practical accessibility, and proximity to essential services β€” making it an ideal option for participants requiring robust supports and long-term housing stability.

Interested in this property?
Here are your options

Ready to apply? Share your details with the provider

Need more detail? Ask the property provider a question

Register to favourite

Property Features

The building

Single storey

Access

Wide doorframes

Wide pathways

Environment

Air conditioning

Outside

Secure backyard

Secure frontyard

Raised garden bed

Garden

Deck/verandah

Outdoor living/entertainment area

Shared Living

Storage for personal equipment

Window

Built-in robe

Direct access to yard / courtyard / garden

Private/ensuite bathroom

Shared living space

Shared kitchen

Shared laundry

Registered SDA: Yes SDA Category: High Physical Support Stay Duration Permanent
Medium term

Provider Details

SDA Provider: Ops Care Pty Ltd

What's nearby

Transport Mernda Railway Station
Shopping Aurora Village
Other Mernda Regent Street Medical

Area Map

Interested in this property?
Here are your options

Ready to apply? Share your details with the provider

Need more detail? Ask the property provider a question

Register to favourite