Skip to content

Content

Prime Cranbourne East Robust SDA Home – Shops, Healthcare & Community Nearby

Cranbourne East VIC 3977

3 bed

3 bath

1 parking
space

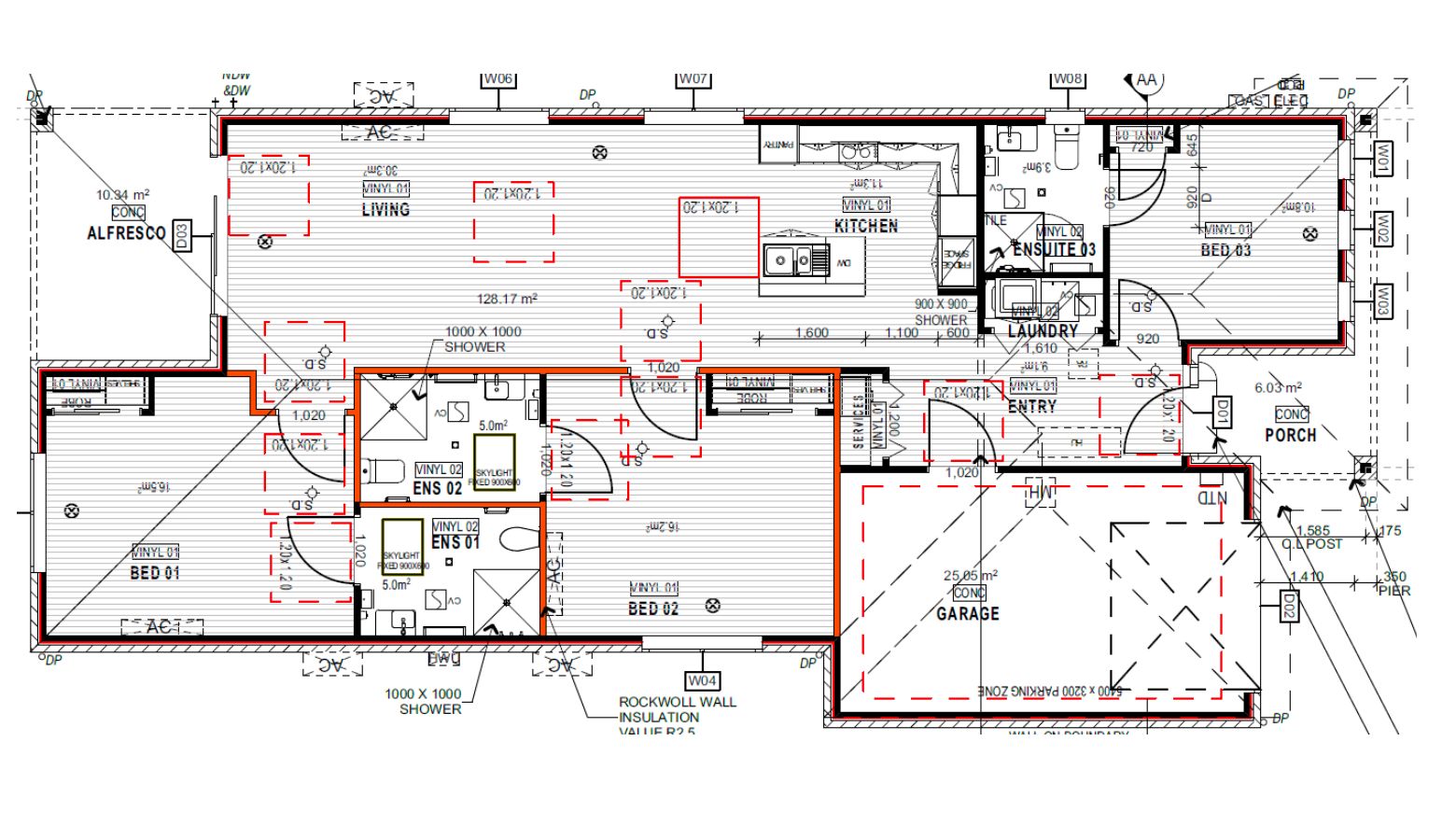
This home features a square, bright layout that maximises the use of space, giving participants plenty of room for daily activities and movement within the property. Designed with both comfort and independence in mind, the property also includes Onsite Overnight Assistance to ensure 24/7 support availability.

Cranbourne East is a growing and well-planned suburb, offering a rare combination of quiet, open surroundings while remaining close to essential amenities. Participants can enjoy easy access to outdoor spaces, community centres, and recreational facilities that promote both physical and emotional wellbeing. For example, a short drive takes residents to Royal Botanic Gardens Cranbourne, ideal for gentle walks and outdoor relaxation, which supports overall health and mood.

The area also has multiple shopping centres within 10 minutes, offering groceries, dining, and specialty foods, as well as a number of nearby GPs to meet participants’ health needs.

🔑 Key Features

• Purpose-built Robust SDA design

• Two spacious participant bedrooms tailored for higher support needs

• Dedicated Onsite Overnight Assistance room for 24/7 support

• Fully accessible kitchen and bathrooms

• Square, practical layout maximising indoor space

• Bright natural light throughout the home

• Wide doorways and generous circulation spaces

• Prime location with a 10-minute living circle — shopping, dining, healthcare, and community facilities all within easy reach

🌿 Nature & Community:

• Casey Fields Playspace and Village Green – 4 min drive

• Eliston Family and Community Centre – 5 min drive

• Livingston Family & Community Centre – 5 min drive

• Royal Botanic Gardens Cranbourne – 10 min drive

🛍 Shopping & Lifestyle:

• Shopping on Clyde – 5 min drive

• Selandra Rise – 7 min drive

• Hunt Club Village – 9 min drive

• Cranbourne Park Shopping Centre – 9 min drive

🏥Healthcare Services Nearby:

• Casey Medical Centre – Clyde – 4 min drive

• Valetta Street Medical Centre – 4 min drive

• iLife Medical Centre – 5 min drive

• Monash Health – Cranbourne Integrated Care Centre – 8 min drive

🚉Public Transport Access:

• Cranbourne Railway Station – 12 min drive

📩 Enquire Now!

Interested in this property?
Here are your options

Ready to apply? Share your details with the provider

Need more detail? Ask the property provider a question

Register to favourite

Property Features

The building

Single storey

Access

Wide doorframes

Wide pathways

Environment

Air conditioning

Outside

Secure backyard

Secure frontyard

Raised garden bed

Garden

Deck/verandah

Outdoor living/entertainment area

Shared Living

Storage for personal equipment

Window

Built-in robe

Direct access to yard / courtyard / garden

Private/ensuite bathroom

Shared living space

Shared kitchen

Shared laundry

Registered SDA: Yes SDA Category: Robust Stay Duration Permanent
Medium term

Provider Details

SDA Provider: Ops Care Pty Ltd

What's nearby

Transport Cranbourne Railway Station
Shopping Shopping on Clyde
Other Casey Medical Centre – Clyde
Monash Health – Cranbourne Integrated Care Centre

Area Map

Interested in this property?
Here are your options

Ready to apply? Share your details with the provider

Need more detail? Ask the property provider a question

Register to favourite