Skip to content

Content

SDA Certified Home with Improved Liveability or Robust + OOA in Point Vernon

Point Vernon QLD 4655

4 bed

4 bath

2 parking
spaces

Horizon SDA is here to help you obtain Specialised Disability Accommodation. We are SDA Developers and a registered SDA Provider who specialise in open plan and spacious High Physical Support SDA homes.

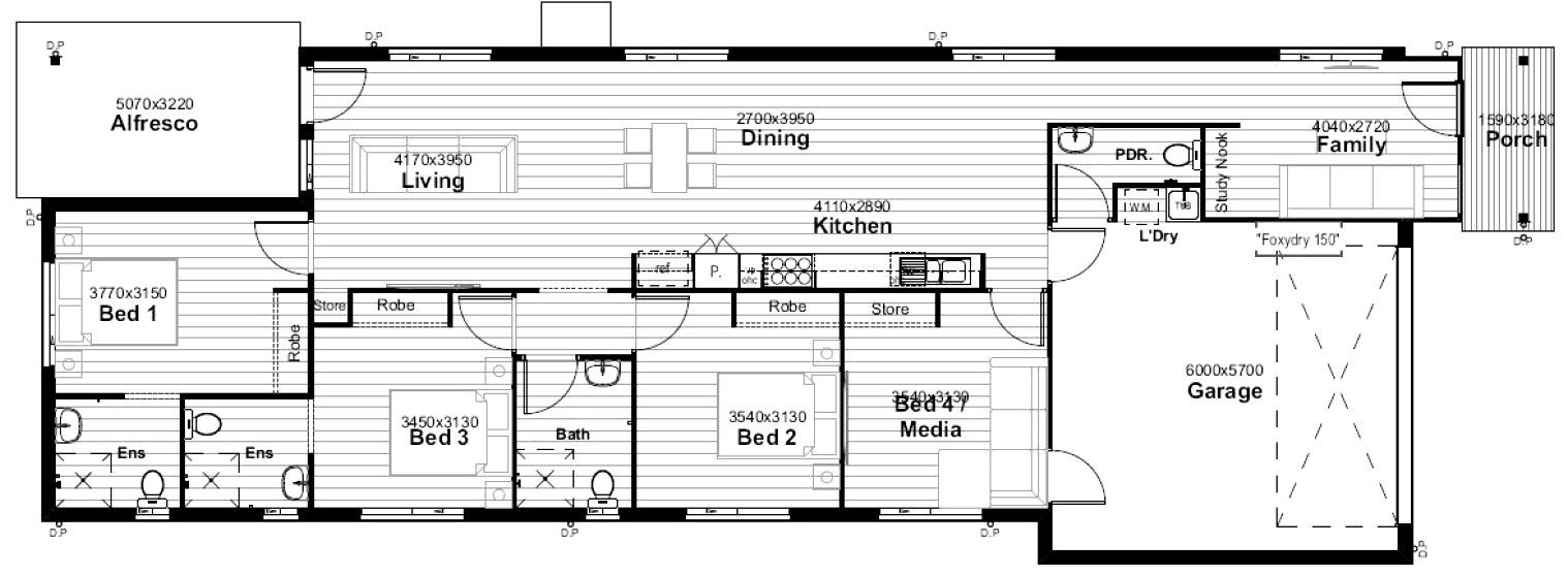
This residence is a comfortable SDA home that can house one Robust Participant plus an additional two Participants at the Improved Liveability level, or potentially three Improved Liveability Participants.

Two ensuite bathrooms adorn the first 2 bedrooms, and there is a separate bathroom for the third bedroom. There is also an OOA room for a support worker or family member + a powder room with toilet. Fully air conditioned, wheelchair access to all internal and external areas, and secure with a lock up double garage.

All our SDA houses are designed to the highest specifications and physical support SDA certification criteria and are totally independently 3rd party approved.

Contact Kylie Peirce for more information on 1300 421 068 or k.peirce@horizonsdacare.com.au

*Digital staging has been used in some photos, and should be used as a guide only.

Interested in this property?
Here are your options

Ready to apply? Share your details with the provider

Need more detail? Ask the property provider a question

Register to favourite

Property Features

The building

Single storey

Access

Wide doorframes

Environment

Air conditioning

Outside

Secure backyard

Outdoor living/entertainment area

Undercover access from parking to property

Shared Living

Storage for personal equipment

Built-in robe

Private/ensuite bathroom

Shared living space

Shared kitchen

Shared laundry

Pet friendly

Registered SDA: Yes SDA Category: Improved Liveability
Robust
Stay Duration Permanent
Medium term
Short term

Area Map

Interested in this property?
Here are your options

Ready to apply? Share your details with the provider

Need more detail? Ask the property provider a question

Register to favourite