Skip to content

Content

Your new Robust or Improved Liveability home!

Delacombe VIC 3356

1 bed

3 bath

2 parking
spaces

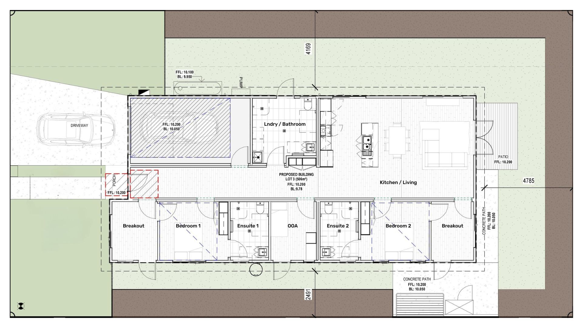
A brand new 2 resident + OOA Robust home is ready for you in Delacombe. You'll have your own generous sized bedroom, ensuite and breakout room.

Enjoy a relaxed lifestyle in a golden city, with historic sites, modern conveniences and sought after amenities at your fingertips. Located just moments from shopping centres, this home offers close proximity to retail and medical facilities. Experience the buzzing food scene, unwind with a visit to the Botanical Gardens and enjoy all of the attractions Ballarat is famous for – all within arms reach. A journey to Melbourne is easy thanks to Ballarat’s well connected public transport. Only 1.5 hours by train, or around the same time if you travel by car.

Interested in this property?
Here are your options

Ready to apply? Share your details with the provider

Need more detail? Ask the property provider a question

Register to favourite

Property Features

The building
Single storey
Access
Wide doorframes Wide pathways
Environment
Air conditioning Heating
Outside
Secure backyard Garden Deck/verandah Outdoor living/entertainment area Undercover access from parking to property
Shared Living
Storage for personal equipment Window Built-in robe Direct access to yard / courtyard / garden Private/ensuite bathroom Shared living space Shared kitchen Shared laundry Pet friendly
Registered SDA: Yes
SDA Category: Improved Liveability
Robust
Stay Duration Permanent

Provider Details

SDA Provider: DEC Housing SIL Provider: Nextt

What's nearby

Area Map

Interested in this property?
Here are your options

Ready to apply? Share your details with the provider

Need more detail? Ask the property provider a question

Register to favourite