Skip to content

Content

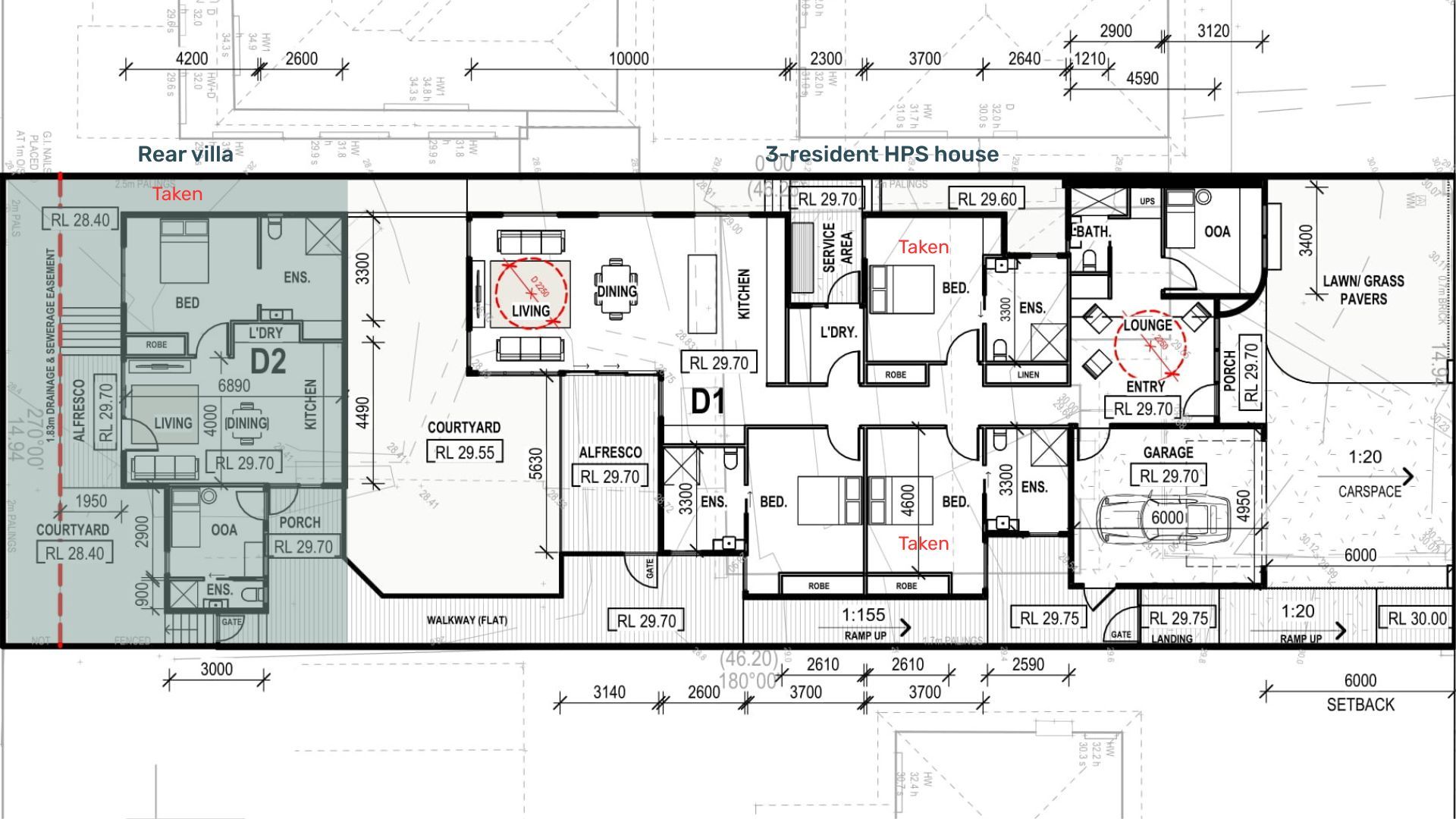
Stunning new HPS home in Pascoe Vale South

Pascoe Vale South VIC 3044

1 bed

4 bath

4 parking
spaces

Share with two friendly woman in a home that combines space for socialising and privacy. A three resident + OOA, modern, energy efficient home is being built to High Physical Support specification, ensuring participants requiring a Fully Accessible home can age in place. Just 10km from the city, this home is close to medical facilities, transport and retail. Enjoy local cafes and the numerous parks, including 5 Mile Creek Reserve. Known for its accessibility, community diversity, and amenities, Pascoe Vale South is a hidden gem being discovered by more and more people.

Features

Large bedrooms with private ensuites

Onsite Overnight Assistance (OOA)

Spacious kitchen/living + second sitting area

Large rear entertainers deck

Fully maintained

Highly energy efficient

Interested in this property?
Here are your options

Ready to apply? Share your details with the provider

Need more detail? Ask the property provider a question

Register to favourite

Property Features

The building
Single storey
Access
Ceiling hoist Wide doorframes Wide pathways
Environment
Air conditioning Heating
Outside
Secure backyard Garden Deck/verandah Outdoor living/entertainment area Undercover access from parking to property
Shared Living
Storage for personal equipment Window Built-in robe Private/ensuite bathroom Shared living space Shared kitchen Shared laundry
Registered SDA: Yes
SDA Category: High Physical Support
Stay Duration Permanent

Provider Details

SDA Provider: DEC Housing SIL Provider: InLife

Area Map

Interested in this property?
Here are your options

Ready to apply? Share your details with the provider

Need more detail? Ask the property provider a question

Register to favourite