Skip to content

Content

Beautiful 2 Bed/2 Bath (+OOA) Improved Liveability House in thriving Thornbury!

Thornbury VIC 3071

2 bed

2 bath

2 parking
spaces

This fantastic 2 Bed/2 Bath Improved Liveability Home with OOA is perfectly located in bustling suburb Thornbury!

3 Reasons You’ll Love Living Here:

1. Thornbury offers a vibrant, inclusive atmosphere with accessible bars, cafes and restaurants.

2. With the train station just 1km away and accessible tram routes nearby, getting to the CBD or surrounding suburbs is easy.

3. From Northland Shopping Centre and Northcote Library, to Palace Westgarth Cinemas, and All Nations Park - there’s no shortage of nearby spaces to enjoy. Nearby CERES Community Environment Park is perfect for a peaceful day outdoors.

Other Features of the Home Include:

Kitchen/Living/Dining:

Extensive worktop space

Accessible storage solutions

Accessible appliances

Modern kitchen fixtures and fittings

Communal furniture & smart TV

Bedrooms & Ensuites:

2 oversized bedrooms, each with private ensuite

Built-in robes with electric robe rail

Level flooring with no thresholds

Easy-to-reach storage

Throughout the home:

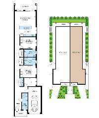
Modern floorplan, contemporary façade and fresh colour scheme

Bright, open, well-lit spaces & 2740mm ceiling height

Generous alfresco with views of the landscaped garden

Accessible door & window handles and light switches

Fire sprinkler system

Individually controlled heating and cooling system

Uninterrupted Power Supply (UPS) battery backup system

Solar panels for energy efficiency

Garage for secure parking and storage

NBN connectivity for reliable internet

Accessible clothesline

All our dwellings have OOA room with ensuite - space, comfort & privacy for staff in our dwellings is a priority.

This property has been custom designed to flow seamlessly around the way you live. Built to the latest NDIA standards, these homes prioritise functionality, independence and accessibility for our residents, with assistive technology and automation integrated throughout. 

To find out more about this stunning new build, click Enquire Now or contact our Relationship and Engagement Team on 03 8639 0131 or info@inplaceliving.com.au

Please note, in order to be eligible for this property, you must have SDA funding in your NDIS plan. MTA is also considered for this property in advance of approved SDA funding.

Interested in this property?
Here are your options

Ready to apply? Share your details with the provider

Need more detail? Ask the property provider a question

Register to favourite

Property Features

The building

Single storey

Access

Ramp access

Ceiling hoist

Wide doorframes

Wide pathways

Environment

Air conditioning

Heating

Outside

Secure backyard

Secure frontyard

Raised garden bed

Garden

Deck/verandah

Outdoor living/entertainment area

Undercover access from parking to property

Shared Living

Storage for personal equipment

Window

Built-in robe

Direct access to yard / courtyard / garden

Private/ensuite bathroom

Shared living space

Shared kitchen

Shared laundry

Pet friendly

Registered SDA: Yes SDA Category: Improved Liveability Stay Duration Permanent
Medium term

Provider Details

SDA Provider: InPlace Living

Area Map

Interested in this property?
Here are your options

Ready to apply? Share your details with the provider

Need more detail? Ask the property provider a question

Register to favourite