Content

Brand NEW Architecturally Designed Carnegie Apartments! • Offering 1- and 2-Bedroom apartments, all with 1 Bathroom, 1 Powder room and parking
Carnegie VIC 3163
1 bed
2 bath
1 parking
space
SDA by Project Friday is excited to be delivering architecturally designed, luxury apartments in the heart of Carnegie.
Just minutes from the complex, you’ll find the suburb’s vibrant activity centre on Koornang Road. The centre offers access to a wide range of goods, services and activities, including commercial, retail, entertainment and community facilities, all at your fingertips. With two full-line supermarkets, an extensive array of fresh food merchants and plenty of charming cafes and restaurants, Carnegie is filled to the brim with accessible options.
The Carnegie activity centre is conveniently connected by a range of transport modes, including trains, trams, buses, pedestrian networks and roads. A recently refurbished train station offers access to the CBD within 20 minutes.
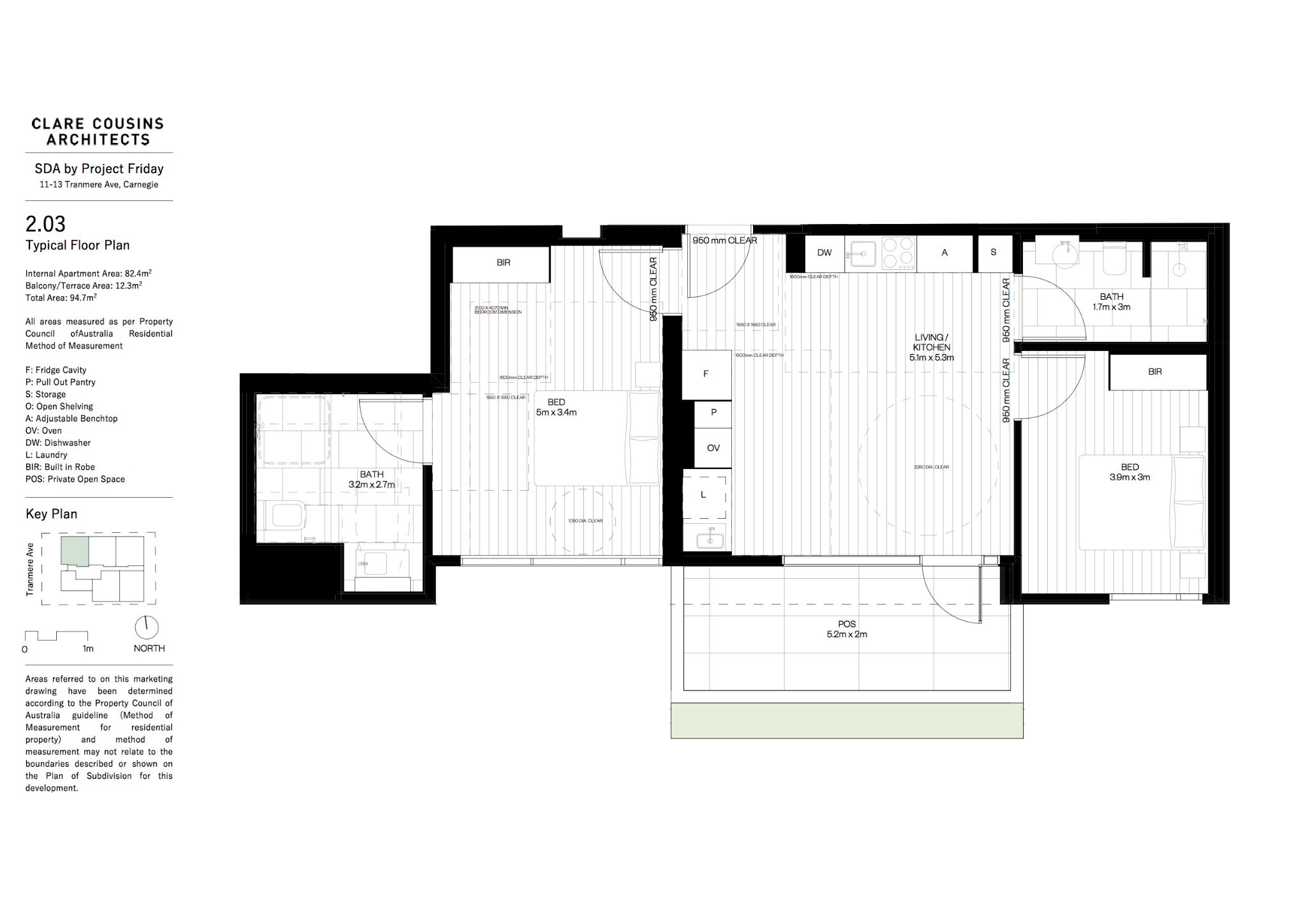
Our luxury complex offers both High Physical Support and Fully Accessible apartments designed to meet your individual needs. Each apartment comes fully equipped with a customisable kitchen, bathroom and laundry, in addition to a wheelchair-accessible private outdoor area and an additional guest powder room.
For seamless access to support, we’ve also installed a two-way communication system, enabling participants to contact support workers located in the apartment’s separate overnight accommodation when required.
We’re proud to say that these spaciously designed, light-filled apartments achieve Platinum level certification under the Liveable Housing Design Guidelines, and meet High Physical Support design requirements under the NDIS.
How much does it cost to live in these apartments?
The SDA funding in your NDIS plan will be paid to SDA by Project Friday. Note: We will not take your Reasonable Rent Contribution, which is 25% of your Disability Support Pension.
You can read more about these 9 Pillars by downloading our SDA by Project Friday Information Booklet from our website www.projectfriday.com.au, and view our virtual tour via this link;
https://sdabyprojectfridayfinalamended.s3.ap-southeast-2.amazonaws.com/index.htm.
For more information about these apartments, eligibility requirements and the application process, please contact Greg Frid on 1300 885 272 or via email sda@projectfriday.com.au
Interested in this property?
Here are your options
Ready to apply? Share your details with the provider
Property Features
Single storey
Lift access
Stair access
Ramp access
Automatic doors
Ceiling hoist
Wide doorframes
Wide pathways
Air conditioning
Compatible to Environmental Control Units (ECU)
Heating
Secure backyard
Secure frontyard
Raised garden bed
Garden
Deck/verandah
Outdoor living/entertainment area
Undercover access from parking to property
Storage for personal equipment
Window
Built-in robe
Direct access to yard / courtyard / garden
Private/ensuite bathroom
Private living space
Private kitchen
Private laundry
Pet friendly
Provider Details
What's nearby
Interested in this property?
Here are your options
Ready to apply? Share your details with the provider
Area Map
Interested in this property?
Here are your options
Ready to apply? Share your details with the provider
Brand NEW Architecturally Designed Carnegie Apartments! • Offering 1- and 2-Bedroom apartments, all with 1 Bathroom, 1 Powder room and parking



















