Skip to content

Content

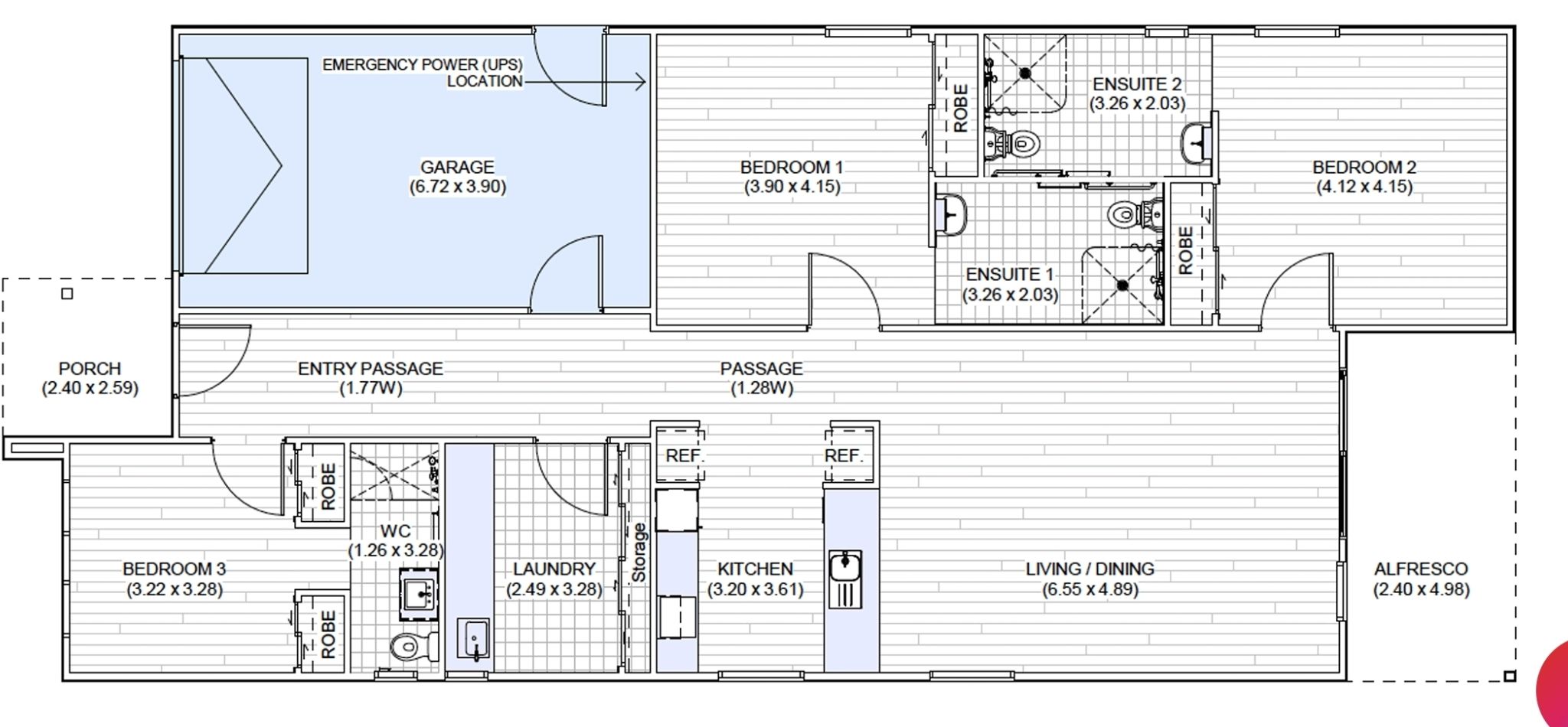
HIGH PHYSICAL SUPPORT SDA HOME

Old Beach TAS 7017

3 bed

3 bath

2 parking
spaces

SDA Strategy is proud to introduce this brand-new Specialist Disability Accommodation (SDA) home in Old Beach.

Purpose built for High Physical Support ne...

Interested in this property?
Here are your options

Ready to apply? Share your details with the provider

Need more detail? Ask the property provider a question

Register to favourite

Property Features

The building

Single storey

Access

Ramp access

Ceiling hoist

Wide pathways

Environment

Air conditioning

Heating

Outside

Secure backyard

Outdoor living/entertainment area

Pool

Shared Living

Storage for personal equipment

Registered SDA: Yes SDA Category: High Physical Support Stay Duration Permanent

Application Criteria

SDA Strategy is proud to introduce this brand-new Specialist Disability Accommodation (SDA) home in Old Beach.

Purpose built for High Physical Support ne...

Area Map

Interested in this property?
Here are your options

Ready to apply? Share your details with the provider

Need more detail? Ask the property provider a question

Register to favourite