Content

Sunnyfield Horst Home
Mona Vale NSW 2103
5 bed
2 bath
2 parking
spaces
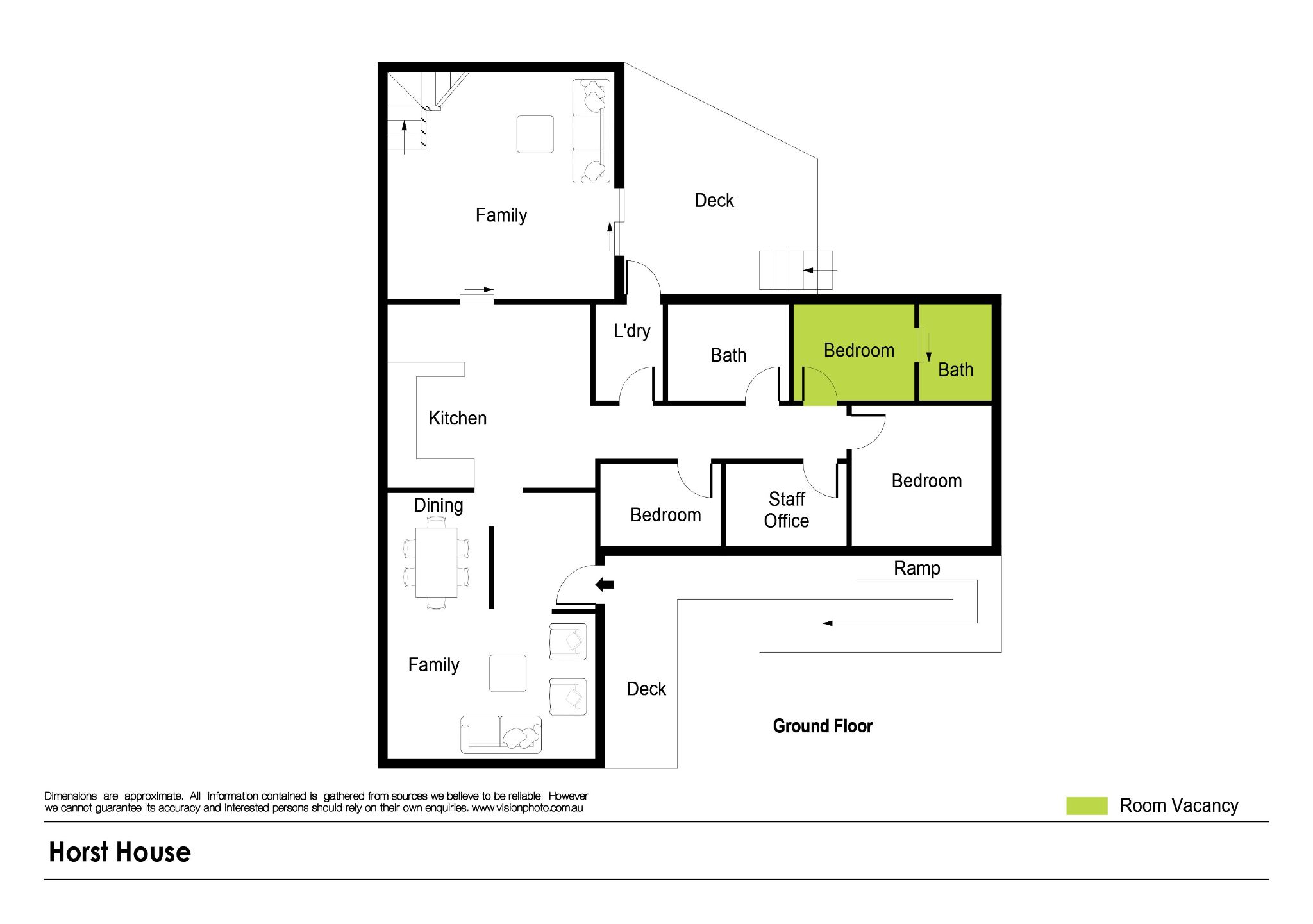
Presenting Horst, Mona Vale a 5-bedroom group home with accessible shared living spaces including a newly appointed kitchen, with 2 lounge / dining areas. 2 bedrooms on the lower ground floor and 3 bedrooms on the upper ground floor.
The current vacancy is on the upper ground floor (bedroom 2) which has mobility access. The bedroom is newly painted and has its own ensuite shower room. Suitable for a kind sociable lady looking to share with four female housemates.
Horst has great shared living spaces outdoors too, with decking and a BBQ on the upper ground floor which is great for visiting families, friends and social functions.
Conveniently located with a short drive of Mona Vale beaches and Headland, or 20 min walk into Mona Vale village, which offers access to shops and cafes. A great opportunity for residents to connect within their community with ease.
Currently, Horst has four female residents, three of which have known each other for decades ranging in age from 38-63. They all take pride in their home and show kindness to each other.
Their independence is fostered through a variety of activities such as music, dancing, coffee shops, going to watch the footy, weekly community outings to Warriewood Square and walks around the local surrounding parks and beaches. Together, creating a supportive and vibrant community where everyone can thrive.
Interested in this property?
Here are your options
Ready to apply? Share your details with the provider
Property Features
Two storey
Ramp access
Wide doorframes
Wide pathways
Air conditioning
Heating
Deck/verandah
Outdoor living/entertainment area
Storage for personal equipment
Window
Built-in robe
Private/ensuite bathroom
Shared living space
Shared kitchen
Shared laundry
Provider Details
What's nearby
Interested in this property?
Here are your options
Ready to apply? Share your details with the provider
Area Map
Interested in this property?
Here are your options
Ready to apply? Share your details with the provider
Sunnyfield Horst Home





