Skip to content

Content

High Physical Support Living with True Separation, Flow and Privacy

Drouin VIC 3818

3 bed

3 bath

2 parking
spaces

Designed for Real Independence

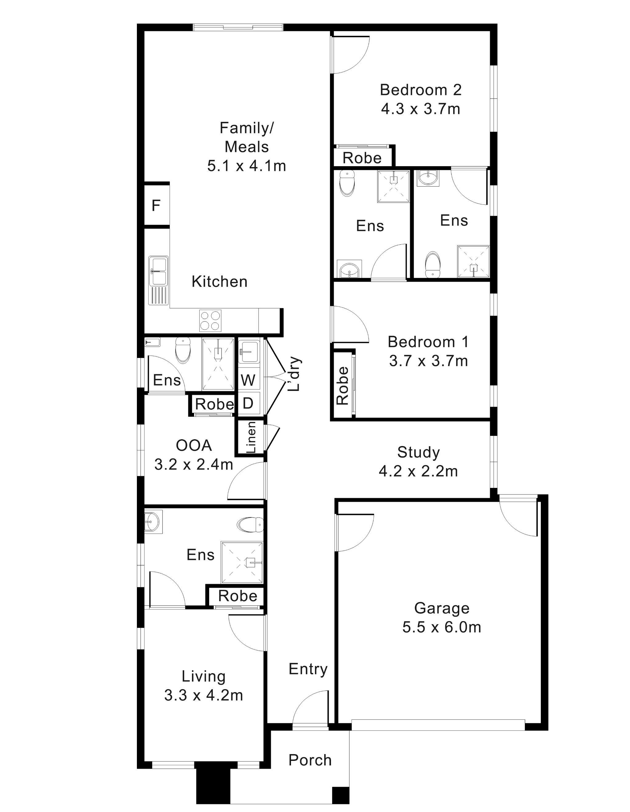
This purpose-built High Physical Support SDA home is designed for participants with complex physical needs, offering genuine accessibility without sacrificing comfort or liveability. The layout is intuitive, calm, and practical, supporting day-to-day routines in a modern, residential setting.

The open-plan kitchen, dining, and living area provides generous circulation for mobility aids, durable finishes for everyday use, and strong natural light throughout. A modern, well-designed kitchen supports both independent and assisted use, while a second living area offers flexibility for quiet time, visitors, or support needs.

Two spacious participant bedrooms are designed to High Physical Support standards, each with clear circulation, built-in storage, wall-mounted TV points, and direct access to a private, fully accessible ensuite. Bathrooms include level-access showers, reinforced walls, slip-resistant flooring, and compliant fixtures for safe, dignified daily use.

A dedicated On-site Overnight Assistance (OOA) room with its own ensuite is positioned to provide responsive support while maintaining participant privacy. Additional features include a multipurpose or therapy room, accessible laundry, ample storage, and a secure double garage with internal access.

The private, level backyard is fully fenced and directly accessible from the living area, offering a low-maintenance outdoor space suitable for daily use and future personalisation.

Designed for long-term living, this home provides a stable, reliable foundation for High Physical Support accommodation. Enquiries are now open to discuss suitability and availability.

Interested in this property?
Here are your options

Ready to apply? Share your details with the provider

Need more detail? Ask the property provider a question

Register to favourite

Property Features

The building

Single storey

Access

Ramp access

Ceiling hoist

Wide doorframes

Wide pathways

Environment

Air conditioning

Heating

Outside

Secure backyard

Undercover access from parking to property

Shared Living

Storage for personal equipment

Window

Built-in robe

Direct access to yard / courtyard / garden

Private/ensuite bathroom

Shared living space

Shared kitchen

Shared laundry

Pet friendly

Registered SDA: Yes SDA Category: High Physical Support Stay Duration Permanent
Medium term

Provider Details

SDA Provider: Necessity Housing

What's nearby

Local terrain Civic Park - 33 Young St, Drouin VIC 3818
Transport Drouin Train Station – 1 Station Place, Drouin VIC 3818
Shopping Drouin Central - 72-100 Young St, Drouin VIC 3818
Other Drouin Medical Clinic – 22 Princes Way, Drouin VIC 3818
West Gippsland Healthcare Group – Drouin Campus – 28 Princes Way, Drouin VIC 3818

Area Map

Interested in this property?
Here are your options

Ready to apply? Share your details with the provider

Need more detail? Ask the property provider a question

Register to favourite