Content

Modern SDA Housing in Dandenong – Shared Home with 24/7 Suppo
Dandenong VIC 3175
2 bed
1 bath
1 parking
space
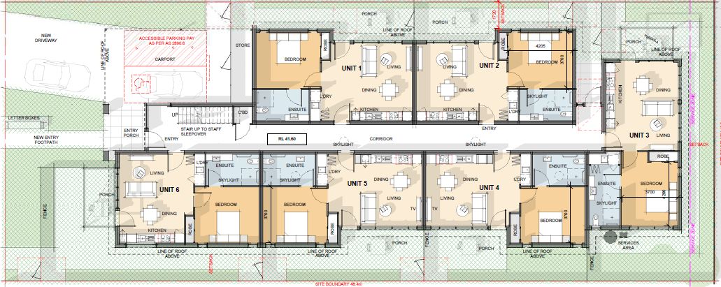
Discover a welcoming and accessible home designed for comfort and independence in this Specialist Disability Accommodation in Dandenong. Built to the High Physical Support SDA Design Standard, this modern shared home is ideal for residents seeking community-style living with continuous onsite support.
The property features three spacious bedrooms, each with its own accessible ensuite, offering privacy and convenience for every resident. A fourth bedroom is reserved for Onsite Overnight Assistance (OOA) staff, ensuring 24/7 support is always available. The open-plan kitchen, dining, and living areas provide plenty of space to cook, relax, and connect, while wide hallways, step-free access, and wheelchair-friendly pathways make movement easy and safe.
Every detail has been thoughtfully considered — from ceiling hoist provisions and emergency power backup to assistive-technology readiness. Individually controlled heating and cooling in each room add to the comfort, while high-quality finishes create a modern and homely feel.
This SDA housing in Dandenong is conveniently located close to shopping centres, medical facilities, public transport, and local parks, allowing residents to enjoy both independence and accessibility within a supportive community.
Claro — awarded the Most Outstanding Disability Support Provider at the 2025 Enablement Awards — has partnered with SDA provider Acares as the onsite care partner. Claro is a registered NDIS provider offering Supported Independent Living (SIL) and Community Participation (CP) supports, helping residents live confidently, safely, and on their own terms.
To be eligible for Specialist Disability Accommodation, you’ll need to be a NDIS participant and have approved SDA funding in your plan. If you’re unsure, speak with your NDIS coordinator or contact Claro via intake@claro.com.au or the form on this page.
Interested in this property?
Here are your options
Ready to apply? Share your details with the provider
Property Features
Single storey
Wide doorframes
Wide pathways
Air conditioning
Heating
Window
Built-in robe
Private/ensuite bathroom
Private living space
Private kitchen
Private laundry
High Physical Support
Provider Details
What's nearby
922m to the nearest bus stop at Princes Hwy/Potter St, Dandenong VIC, Australia.
1km to the nearest medical practice (GP) at Dandenong West Medical Centre, Hemmings Street, Dandenong VIC, Australia.
Interested in this property?
Here are your options
Ready to apply? Share your details with the provider
Area Map
Interested in this property?
Here are your options
Ready to apply? Share your details with the provider
Modern SDA Housing in Dandenong – Shared Home with 24/7 Suppo






