Content

Your New Personalised Home in Melton South
Melton South VIC 3338
3 bed
3 bath
2 parking
spaces
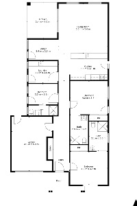
Your New Access Living Home in the Orchard Green Estate
2BR + OOA built to HPS Specifications
At Access Living, we believe home should be
about you. Your needs. Your style. Your lifestyle.
Where you always feel ‘at home’ – and free to
live the life you choose.
That’s why we partner closely with disability service
providers to design specialised support homes that
give you the most choice and control over your living
environment. These are the principles that guide the
homes we create and the services we provide, so you
can live your best life.
Our homes are designed for everyday living to the
fullest. With your lifestyle in mind, we combine
cutting-edge technology; smart, timeless finishes;
and personalisation options – much more than any
other provider, in fact. So you’ll feel right at home
in a place that meets your needs.
Turnkey Inclusions:
• Full Turnkey with NDIS High Physical Inclusions/Upgrades
• High Spec Landscaping to Front and Rear
• Designer, Architecturally Designed Home, Inside and Out
• Reinforced Walls
• Reinforced Ceilings
• Wider Hallways
• Carers Room with Ensuite
• UPS System
• Non-Slip Flooring in Wet Areas
• HIA Industry Building Contracts
• Site Costs Included
Contact Reddy Vonipenti , Partnerships & Engagement Manager, at Access Living Group today to find out more - reddy@accesslivinggroup.com.au or 0439340119
Interested in this property?
Here are your options
Ready to apply? Share your details with the provider
Property Features
Single storey
Wide doorframes
Wide pathways
Air conditioning
Heating
Secure backyard
Deck/verandah
Outdoor living/entertainment area
Undercover access from parking to property
Window
Private/ensuite bathroom
Shared living space
Shared kitchen
Shared laundry
Fully Accessible
High Physical Support
Interested in this property?
Here are your options
Ready to apply? Share your details with the provider
Area Map
Interested in this property?
Here are your options
Ready to apply? Share your details with the provider
Your New Personalised Home in Melton South











